Three-room apartment Piazza Delle Vettovaglie 1, Pisa
€ 170.000
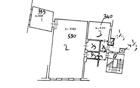
Proponiamo in esclusiva di vendita uno spazioso appartamento nel cuore del centro storico, zona Santa Maria, ottimo per investitori. NOSTRA ESCLUSIVA! Rif. 2024029-L'immobile si trova al secondo piano di un edificio in centro storico con ascensore presente con possibilità di fermata e gode di una posizione molto centrale con affacci sul centro. Attualmente libero al rogito, questo dispone di una metratura totale di 110 metri quadrati. Le spese condominiali ammontano a 70 euro mensili.L'ingresso si apre su un ampio e accogliente soggiorno con struttura soppalcata. L'immobile si presenta in stato grezzo quindi da ristrutturare, dando la possibilità di personalizzarlo secondo i propri gusti e le proprie esigenze. La palazzina si sviluppa su tre piani totali e si trova in una zona servita da tutti i principali servizi e mezzi di trasporto. L'appartamento in vendita rappresenta una grande opportunità per chi cerca una soluzione abitativa in una delle zone più richieste e apprezzate di Pisa. Per maggiori informazioni contattare l'agenzia riportando il numero di riferimento.
Main data
| Reference | 2024029 |
| Ad date | 13/05/2025 |
| Contract | Sale |
| Typology | Apartment |
| Surface | 110 m2 |
| Locals | 3 (2 bedrooms, 1 other), 1 bathroom, kitchen habitable |
| Plan | 2 from 3 totals |
| Construction type | Average |
| Occupied | Free |
| Garage | Absent |
| Furniture | Absent |
Costs
| Price | 170.000 € |
| Price per m2 | 1.545 €/m2 |
Energy efficiency
| Status | To be restored |
| Heating Power Type | Electric |
| Energy rating | G |
| Energy Performance Index (IPE) | - |
Floor plans
Video
Address and map
Piazza Delle Vettovaglie
1, Pisa
Ad without map,
try asking the advertiser for the position
try asking the advertiser for the position
Mortgage calculation
Selling price:
Advance
20,00
Mortgage
80,00
Rate: -+
Payment: 486 per month
The results are an indicative estimate based on the data entered and do not constitute a financial offer.
Advertiser

Megaron Immobiliare Pisa
Via Carlo Cattaneo 59, Pisa
Show Phone
Show Mobile
Call
CONTACT

