Independent house via Venezia 6, Comiso
€ 89.000
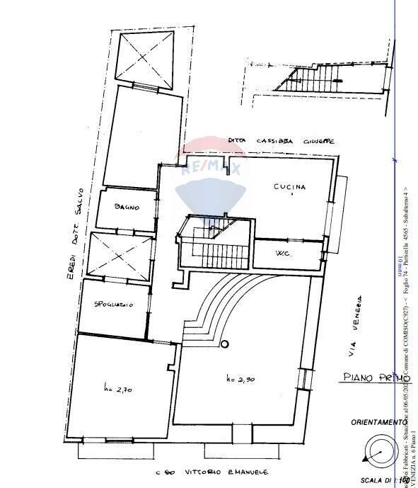
IMMOBILE COMPOSTO DA 2 APPARTAMENTI E DA GARAGE La rete immobiliare RE/MAX presenta in vendita a Comiso ottimo immobile disposto ad angolo composto da 2 appartamenti e garage. Al piano terra dell' immobile è presente garage di mq. 65 circa con ingresso da via Venezia; Al primo piano è presente appartamento di mq. 162 circa così composto: ampio e luminoso salotto, sala soggiorno-pranzo, lavanderia, 3 camere da letto, ripostiglio, bagno. Al secondo piano è presente appartamento di mq. 105 circa così composto: sala soggiorno-pranzo, lavanderia, 3 camere da letto, bagno. L' immobile è abitabile sin da subito, si presenta infatti in buone condizioni sia interne che esterne. Un altro punto di forza di questo immobile è la buona finitura degli interni: il pavimento in granito, le porte interne artigianali laccate bianche e intarsiate, le porte di ingresso in legno massello di qualità, gli infissi esterni portefinestre e persiane in alluminio di colore bianco, il controsoffitto che apporta estetica agli ambienti. L' appartamento al primo piano è inoltre provvisto di impianto di riscaldamento a metano con termosifoni e fan coil. Si valuta, a discrezione della proprietà, anche la vendita di parte dell' immobile e precisamente: appartamento primo piano ( con o senza garage), appartamento secondo piano (con o senza garage). Non esitare a telefonare per informazioni o per visionare l' immobile di presenza.
Main data
| Reference | 40001082-42 |
| Ad date | 13/05/2025 |
| Contract | Sale |
| Typology | Independent house |
| Surface | 400 m2 |
| Locals | more than 5 (6 bedrooms, 14 other), 5 bathrooms, kitchen habitable |
| Plan | Entire building, 2 totals |
| Occupied | Free |
| Garage | Triple |
| Number of parking spaces | 3 |
Costs
| Price | 89.000 € |
| Price per m2 | 223 €/m2 |
Energy efficiency
| Status | Excellent |
| Heating | Autonomous |
| Energy rating | G |
| Energy Performance Index (IPE) | - |
Floor plans
Address and map
via Venezia
6, Comiso
Ad without map,
try asking the advertiser for the position
try asking the advertiser for the position
Mortgage calculation
Selling price:
Advance
20,00
Mortgage
80,00
Rate: -+
Payment: 255 per month
The results are an indicative estimate based on the data entered and do not constitute a financial offer.
Advertiser

RE/MAX Platinum 6
Via U. La Malfa, 47/49, Ragusa
Show Phone
Show Mobile
Call
CONTACT

