Shop via Mazzini, Varedo
€ 1.150 per month
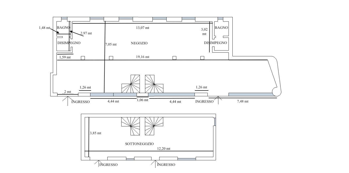
Affittasi Negozio a Varedo. Via Mazzini, in stabile di moderna costruzione proponiamo negozio a 2 luci di mq 147, composto da open space con bagno finestrato, oltre a 44 mq di sottonegozio (o cantina) al piano interrato. Il locale è fornito di doppio ingresso sulla strada e dalla cantina. Il negozio è in ottime condizioni, ideale sia per attività commerciali sia come ufficio; è dotato di vetrine con doppi vetri con infissi in alluminio. LIBERO SUBITO. Esente da certificazione energetica in quanto sprovvisto di caldaia (che però può essere inserita, i termosifoni sono presenti). Prezzo euro 1150 + IVA oltre 100 di spese condominiali. Pagamenti richiesti: tre mesi di deposito cauzionale (escluse spese condominiali) e affitto trimestrale anticipato. Inoltre è richiesta una fideiussione bancaria per lammontare di un anno di affitto, comprese spese. Si richiedono visura camerale e ultimo bilancio. Il locale è situato in zona di passaggio e nelle immediate vicinanze si trovano supermercati, negozi, ristoranti, bar, ufficio postale, banche, farmacia. La zona è servita dai mezzi di trasporto pubblico: -bus 165, Z111 a 10 minuti a piedi dalla stazione ferroviaria di Varedo. Imbocco autostrade e tangenziali raggiungibile velocemente. Chiama il numero 02.37052776, Agenzia Immobiliare Sarpi, via Cenisio 42, dal lunedì al venerdì dalle 9.30 alle 13 e dalle 15 alle 18.30, il sabato dalle 9 alle 13.
Main data
| Reference | 1469 |
| Ad date | 13/05/2025 |
| Contract | Rent |
| Typology | Shop |
| Surface | 147 m2 |
| Locals | 1 (1 other), 2 bathrooms |
| Plan | Earth, 4 totals |
| Occupied | Free |
| Garage | Absent |
| Furniture | Absent |
Costs
| Price | 1.150 € per month |
Energy efficiency
| Status | Good |
| Heating | Absent |
| Heating Power Type | Other |
| Energy rating | Not classifiable |
Floor plans
Video
Address and map
via Mazzini, Varedo
Ad without map,
try asking the advertiser for the position
try asking the advertiser for the position
Advertiser

Sarpi Agenzia 18
via Cenisio 42, Milano
Show Phone
Show Mobile
Call
CONTACT

