Ad without photo,
try asking the advertiser
try asking the advertiser
Semi-detached house Via Montegrappa, Lucca
€ 350.000
Terratetto in fase di costruzione in vendita a Lucca, zona Circonvallazione.
In zona strategica, a due passi dalle Mura Urbane, l'agenzia immobiliare Casanotizia è lieta di presentare terratetto centrale sito all'interno di bel contesto residenziale fronte mura. L'immobile viene venduto completamente ristrutturato "chiavi in mano", con materiali di ottima qualità. Corredato da resede privata per due posti auto.
L'immobile è di circa 100 mq e si sviluppa su due livelli. Al piano terra troviamo una grande zona giorno, cucina abitabile, bagno e ripostiglio sottoscala. Al piano superiore si sviluppa la zona notte composta da due ampie camere e un ulteriore bagno.
Ottima soluzione per chi cerca un immobile nuovo con la possibilità di raggiungere a piedi la città.
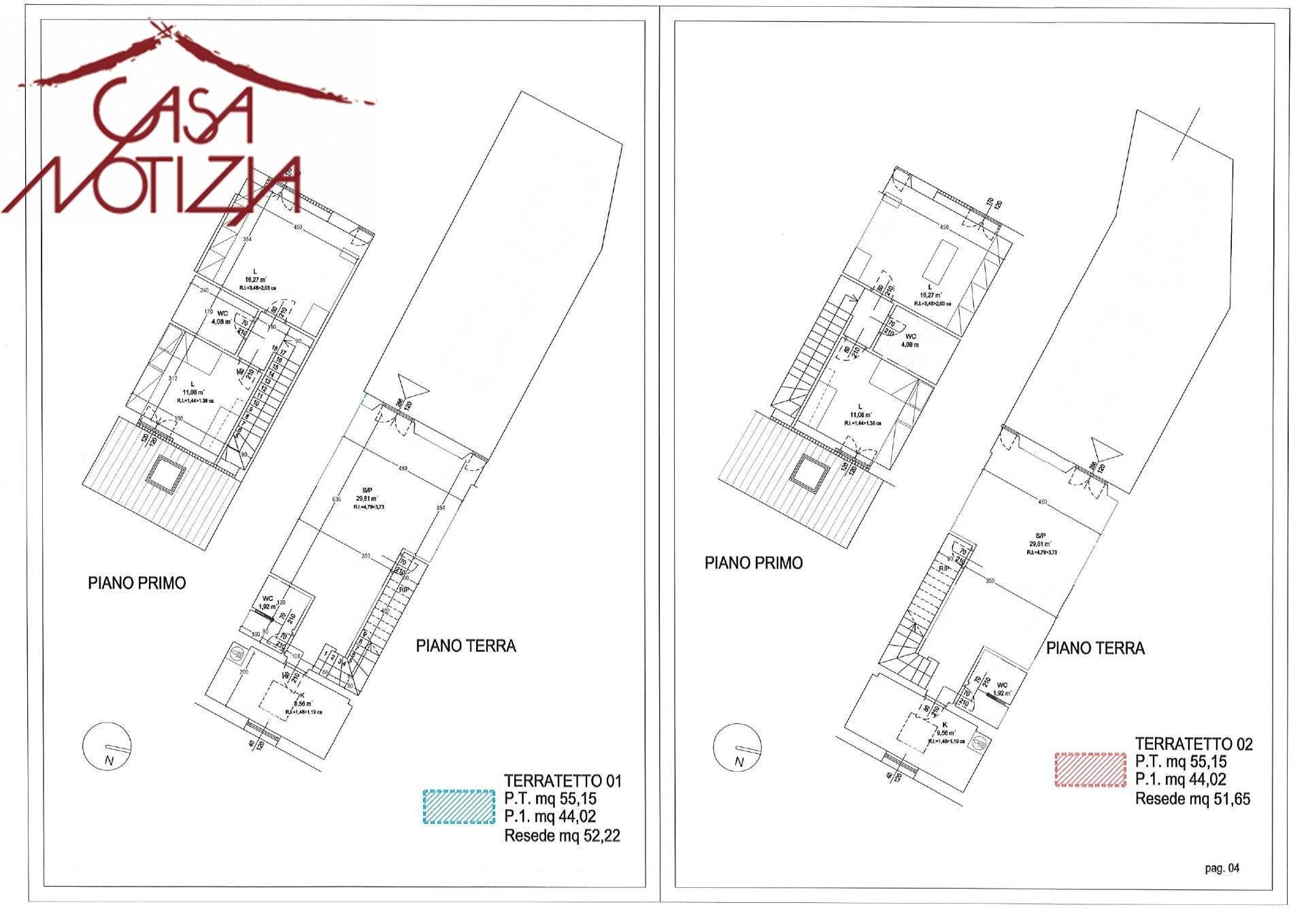
I terratetti disponibili sono due, come si vede in planimetria e sono complementari.
La vendita è soggetta ad Iva.
In zona strategica, a due passi dalle Mura Urbane, l'agenzia immobiliare Casanotizia è lieta di presentare terratetto centrale sito all'interno di bel contesto residenziale fronte mura. L'immobile viene venduto completamente ristrutturato "chiavi in mano", con materiali di ottima qualità. Corredato da resede privata per due posti auto.
L'immobile è di circa 100 mq e si sviluppa su due livelli. Al piano terra troviamo una grande zona giorno, cucina abitabile, bagno e ripostiglio sottoscala. Al piano superiore si sviluppa la zona notte composta da due ampie camere e un ulteriore bagno.
Ottima soluzione per chi cerca un immobile nuovo con la possibilità di raggiungere a piedi la città.
I terratetti disponibili sono due, come si vede in planimetria e sono complementari.
La vendita è soggetta ad Iva.
Main data
| Reference | 66271 |
| Ad date | 13/05/2025 |
| Contract | Sale |
| Typology | Semi-detached house |
| Surface | 100 m2 |
| Locals | 4 (2 bedrooms, 2 other), 2 bathrooms, kitchen habitable |
| Plan | On several levels, 2 totals |
| Construction type | Signorile |
| Occupied | Free |
| Number of parking spaces | 2 |
| Furniture | Absent |
Costs
| Price | 350.000 € |
| Price per m2 | 3.500 €/m2 |
Energy efficiency
| Heating Power Type | Other |
| Energy rating | Property exempt from energy certification |
Floor plans
Address and map
Via Montegrappa, Lucca
Ad without map,
try asking the advertiser for the position
try asking the advertiser for the position
Mortgage calculation
Selling price:
Advance
20,00
Mortgage
80,00
Rate: -+
Payment: 1.001 per month
The results are an indicative estimate based on the data entered and do not constitute a financial offer.
Advertiser

Casanotizia Del Geom. Gabriele Alessandro
Viale San Concordio n. 537, Lucca
Show Phone
Show Mobile
Call
CONTACT