Semi-detached house Treviso
€ 82.000
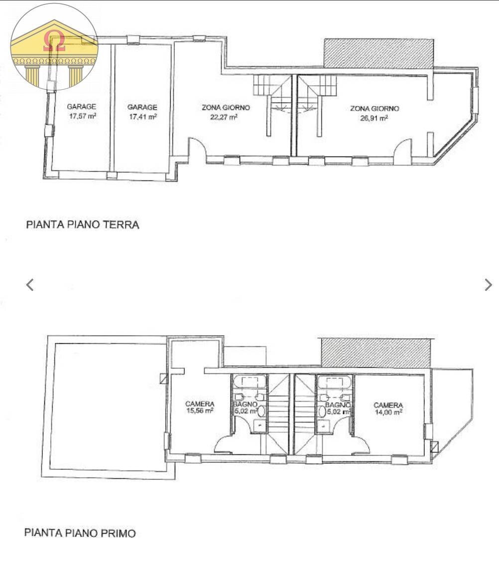
TREVISO - GHIRADA - Abitazione indipendente da ristrutturare. La casa si sviluppa su 130 mq. su due piani fuori terra, ampio spazio destinabile a zona giorno e doppio garage al piano terra, mentre al piano primo troviamo due stanze e un bagno, oltre che un terrazzo abitabile di circa 30 mq. Ideale per ricavare due mini porzioni indipendenti con garage, come da progetto in foto. Limmobile si trova in una zona residenziale e dista 500 m dai campi sportivi La Ghirada, 1,5 km dal centro storico di Treviso e 2,3 km dall Ospedale Ca Foncello. Rif. 2967 Agenzia Omega - Il tuo partner immobiliare di fiducia. Per altre proposte, visita il nostro sito https://www.agenziaomega.it
Main data
| Reference | 2967 |
| Ad date | 13/05/2025 |
| Contract | Sale |
| Typology | Semi-detached house |
| Surface | 130 m2 |
| Locals | 4 (2 bedrooms, 2 other), 2 bathrooms |
| Plan | On several levels, 1 totals |
| Occupied | Free |
Costs
| Price | 82.000 € |
| Price per m2 | 631 €/m2 |
Energy efficiency
| Heating Power Type | Other |
| Energy rating | Property exempt from energy certification |
Floor plans
Address and map
Treviso
Ad without map,
try asking the advertiser for the position
try asking the advertiser for the position
Mortgage calculation
Selling price:
Advance
20,00
Mortgage
80,00
Rate: -+
Payment: 235 per month
The results are an indicative estimate based on the data entered and do not constitute a financial offer.
Advertiser
Call
CONTACT


