Villa via Andreis, Desenzano del Garda
€ 450.000
Rif: EB 33091035-335 DESENZANO DEL GARDA CENTRO - QUADRILOCALE ARREDATO di grande fascino, in elegante complesso con due piscine. All'interno di un Borgo antico sapientemente ristrutturato che ha preservato la sua storicità e il sapore di epoche passate, proponiamo questo ampio appartamento per gli amanti di residenze eleganti e che si distinguono per genere unico. Il Complesso sorge in zona centrale che consente a piedi di raggiungere il centro e le spiagge. Comodi anche gli spostamenti per la vicinanza all'autostrada e alle tangenziali. Le due ampie piscine sono collocate lontane dalle abitazioni per regalare privacy e silenzio, e i camminamenti sono incorniciati dal lussureggiante parco curatissimo ricco di essenze mediterranee e di piante secolari. Presenti grandi locali ad uso spogliatoi, docce e ricovero ombrelloni e sdraio. L'appartamento ha la caratteristica di avere due accessi indipendenti, uno dall'interno della corte, l'altro direttamente dal giardino privato di circa 100 mq dove si sviluppa una pergola che offre riparo per poter pranzare all'aperto e godersi momenti di assoluto relax. Al piano terra troviamo la zona living dove si sviluppa la cucina e il salotto impreziosito da un romantico camino; al piano superiore troviamo due camere da letto e un bagno, oltre ad un ulteriore zona soppalco che si può utilizzare come zona ospiti. Al piano sottostante, ma comunque fuori terra, troviamo una seconda zona giorno che potrebbe essere utilizzata anche come zona relax od ulteriore zona ospiti, e che accede direttamente al giardino privato e secondo bagno. Gli arredi sono completamente compresi nel prezzo ,come da fotografie allegate, di nota Azienda di grande prestigio e che ci rimandano immediatamente ad una sensazione di vacanza ma molto raffinati e ricercati. Completa la proprietà un ampio box e due posti auto privati di proprietà. I muri d'epoca di spessore importante e la ristrutturazione eccellente, garantiscono bassi costi di gestione interna. DESENZANO DEL GARDA Sulle rive meridionali del Lago di Garda, adagiata a ventaglio sulla prima cerchia dell'anfiteatro morenico, Desenzano è un'incantevole cittadina e gradevole località balneare. Ottimo punto di partenza per gite ed escursioni, Desenzano presenta un patrimonio artistico, storico e archeologico che affonda le sue radici in epoca romana. Nel Medioevo fu oggetto di aspre lotte tra Brescia e Verona, nel Quattrocento poi passò sotto il dominio di Venezia, divenendo in epoca moderna un fiorente centro commerciale. Il cuore della città sorge attorno a Piazza Malvezzi e al Porto Vecchio, abbellito dai palazzi cinquecenteschi dell'architetto bresciano Giulio Todeschini. Da non perdere: la zona archeologica, che custodisce i resti di una grandiosa villa romana del IV sec. d.C. con splendidi pavimenti policromi a mosaico, il Museo archeologico, con uno degli aratri più antichi del mondo, la panoramica torre di S. Martino della Battaglia. Opere notevoli si possono ammirare nella cappella del Duomo, che conserva importanti capolavori di Andrea Celesti (1637-1712 ca.) e "L'ultima cena" (del 1738) di Gian Battista Tiepolo (1696-1770). Si segnala il Castello, fondato forse già nell'alto Medioevo e ricostruito nei sec. XIV-XV, recentemente recuperato e dal quale si gode una delle più belle viste sul lago di Garda. Anche Villa Brunati è stata restaurata e dal 2007 adibita a Biblioteca comunale multimediale. Negli ultimi decenni Desenzano è diventata anche la località del Garda più rinomata per la sua vitalità e l'offerta di intrattenimento, grazie a un'ampia e variegata presenza di ristoranti, bar, discobar e discoteche. La città offre inoltre la possibilità di praticare tutti gli sport nautici (in particolare windsurf, vela e sub) e sono presenti maneggi e campi da tennis e da golf. Desenzano è una destinazione turistica per tutti: dalle famiglie con bambini alle coppie...
Main data
| Reference | 33091035-335 |
| Ad date | 13/05/2025 |
| Contract | Sale |
| Typology | Villa |
| Surface | 150 m2 |
| Locals | 4 (3 bedrooms, 1 other), 2 bathrooms, kitchen on sight |
| Plan | Earth, 3 totals |
| Occupied | Free |
| Garage | Single |
| Number of parking spaces | 2 |
| Furniture | Complete |
Costs
| Price | 450.000 € |
| Price per m2 | 3.000 €/m2 |
Energy efficiency
| Status | Excellent |
| Heating | Autonomous |
| Energy rating | G |
| Energy Performance Index (IPE) | 392 kWh/m2 year |
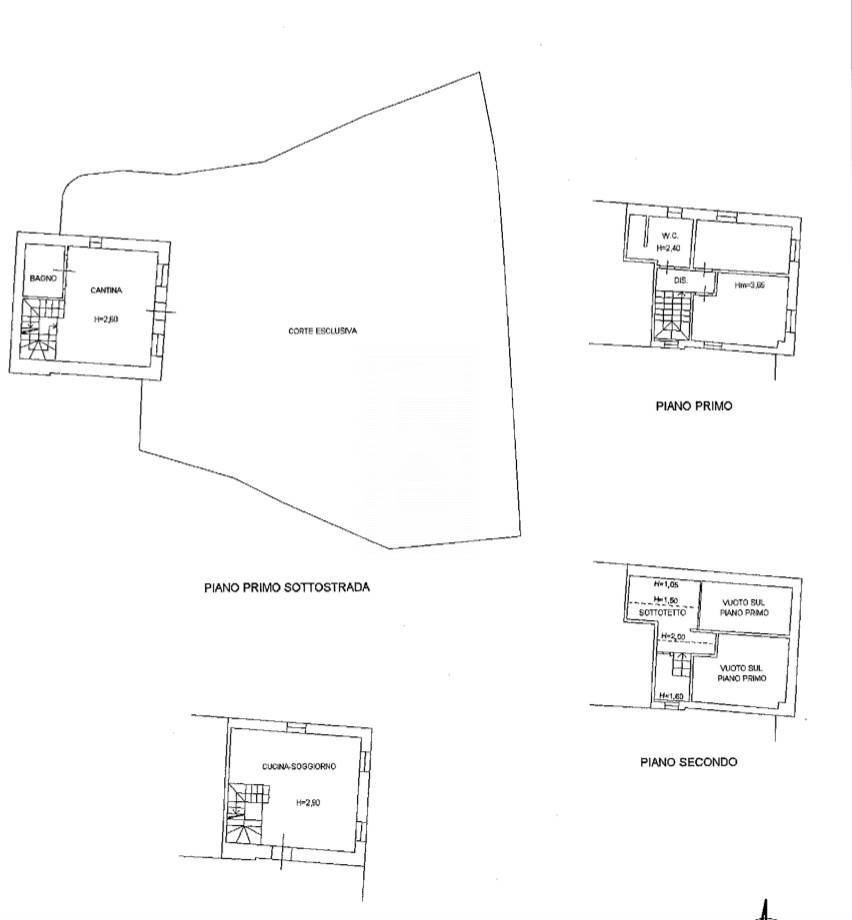
Floor plans
Virtual tour
Video
Address and map
via Andreis, Desenzano del Garda
Ad without map,
try asking the advertiser for the position
try asking the advertiser for the position
Mortgage calculation
Selling price:
Advance
20,00
Mortgage
80,00
Rate: -+
Payment: 1.287 per month
The results are an indicative estimate based on the data entered and do not constitute a financial offer.
Advertiser
Call
CONTACT


