Three-room apartment Piazza Unità D'Italia snc, Ripatransone
€ 145.000
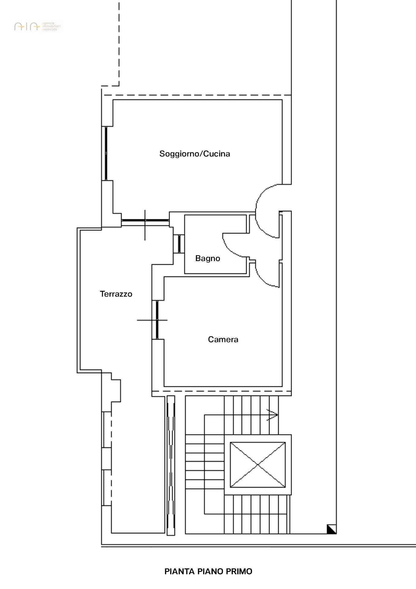
Nel cuore del borgo residenziale "La vigna" è in vendita un appartamento al piano primo di 52 mq circa composto da ingresso su ampio soggiorno, cucia a vista, camera da letto matrimoniale e bagno. Ad ovest dell'appartamento è presente un terrazzo particolarmente comodo, accessibile sia dal soggiorno che dalla camera da letto, in cui è collocato un vano ripostiglio dotato di vaschetta per l'acqua e lavatrice.
Tutti gli ambienti si presentano in buone condizioni sia per l'attenta conduzione dell'attuale proprietario sia perchè la palazzina in cui è collocata detta unità, è di recente costruzione, dotata di termo cappotto, riscaldamento centralizzato, infissi in legno con doppio vetro, videocitofono, impianto elettrico e idraulico a norma.
A pochi kilometri da Grottammare, nel borgo residenziale non mancano nessun generi di servizi: negozio di generi alimentari, bar, asilo...
Completa la vendita un garage nel piano sottostrada di circa 25 mq.
L'appartamento è in vendita comprensivo di tutto l'arredamento.
Tutti gli ambienti si presentano in buone condizioni sia per l'attenta conduzione dell'attuale proprietario sia perchè la palazzina in cui è collocata detta unità, è di recente costruzione, dotata di termo cappotto, riscaldamento centralizzato, infissi in legno con doppio vetro, videocitofono, impianto elettrico e idraulico a norma.
A pochi kilometri da Grottammare, nel borgo residenziale non mancano nessun generi di servizi: negozio di generi alimentari, bar, asilo...
Completa la vendita un garage nel piano sottostrada di circa 25 mq.
L'appartamento è in vendita comprensivo di tutto l'arredamento.
Main data
| Reference | 32967 |
| Ad date | 13/05/2025 |
| Contract | Sale |
| Typology | Apartment |
| Surface | 52 m2 |
| Locals | 3 (1 bedroom, 2 other), 1 bathroom, kitchen on sight |
| Plan | 1 from 2 totals |
| Occupied | Free |
| Garage | Single |
| Furniture | Complete |
Costs
| Price | 145.000 € |
| Price per m2 | 2.788 €/m2 |
Energy efficiency
| Status | Good |
| Heating | Centralized |
| Energy rating | C |
| Energy Performance Index (IPE) | 110 kWh/m2 year |
Floor plans
Address and map
Piazza Unità D'Italia
snc, Ripatransone
Ad without map,
try asking the advertiser for the position
try asking the advertiser for the position
Mortgage calculation
Selling price:
Advance
20,00
Mortgage
80,00
Rate: -+
Payment: 415 per month
The results are an indicative estimate based on the data entered and do not constitute a financial offer.
Advertiser
Call
CONTACT


