Commercial Activity Castelfiorentino
€ 900 per month
Fondo commerciale in affitto a Castelfiorentino, zona centrale.
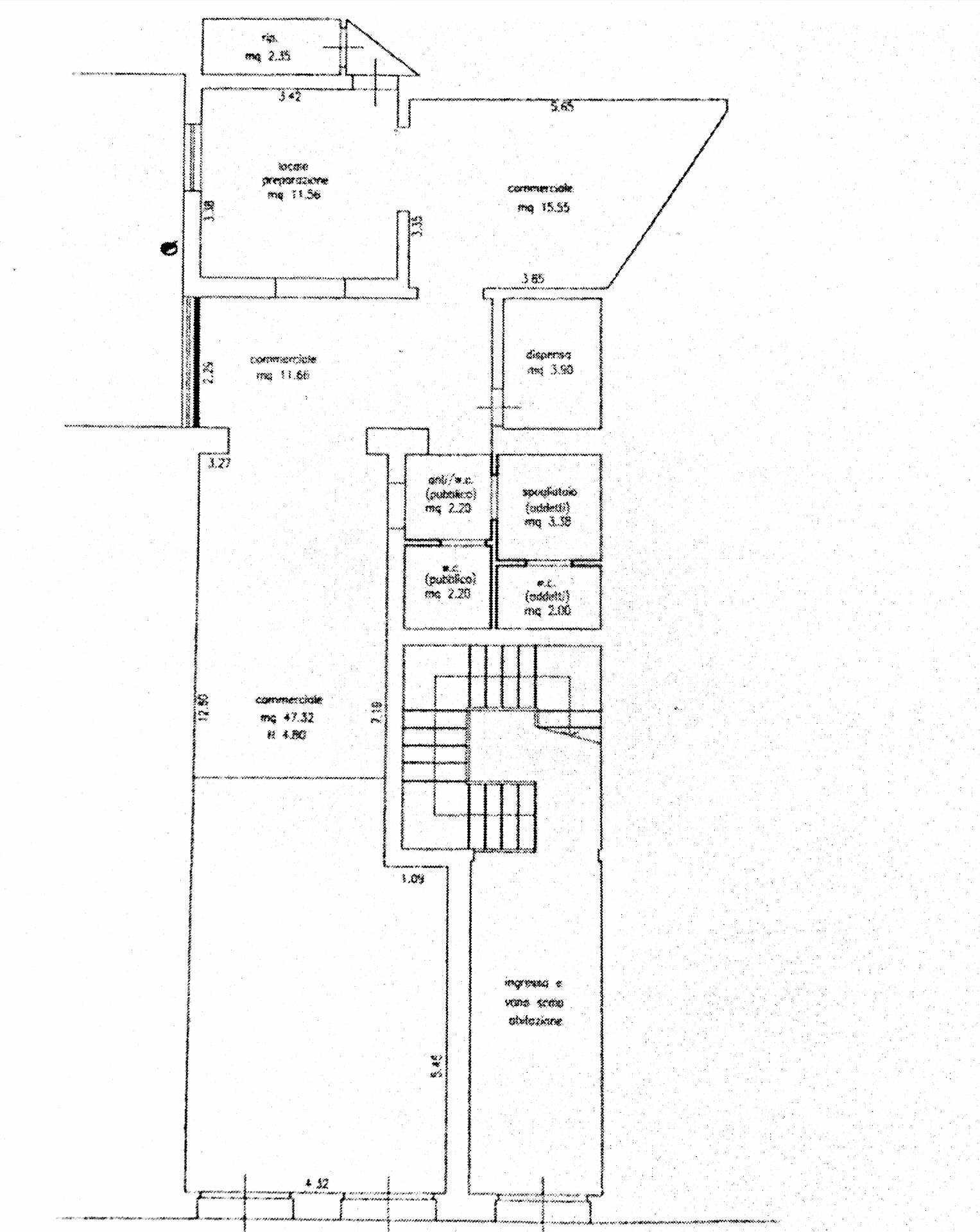
Fondo commerciale di c.a 75 mq con ampia vetrina oltre antibagno e bagno per clienti e spogliatoio e bagno per i dipendenti. Oltre dispensa , ripostiglio e piccola cucina di c. a 12 mq. No canna fumaria.
Rif CC/8306 900,00 tratt.
Per maggiori informazioni contattare i seguenti numeri,
ufficio/Whatsapp 0571 629187 cell. 393 9703849
oppure potete visitare il nostro sito www.affittapresto.it e valutare altre interessanti proposte.
Fondo commerciale di c.a 75 mq con ampia vetrina oltre antibagno e bagno per clienti e spogliatoio e bagno per i dipendenti. Oltre dispensa , ripostiglio e piccola cucina di c. a 12 mq. No canna fumaria.
Rif CC/8306 900,00 tratt.
Per maggiori informazioni contattare i seguenti numeri,
ufficio/Whatsapp 0571 629187 cell. 393 9703849
oppure potete visitare il nostro sito www.affittapresto.it e valutare altre interessanti proposte.
Main data
| Reference | CC8306 |
| Ad date | 13/05/2025 |
| Contract | Rent |
| Typology | Commercial Activity |
| Surface | 100 m2 |
| Locals | 2 (2 other), 2 bathrooms |
| Plan | Earth, 2 totals |
| Occupied | Free |
| Furniture | Absent |
Costs
| Price | 900 € per month |
Energy efficiency
| Status | Good |
| Heating Power Type | Other |
| Energy rating | Property exempt from energy certification |
Address and map
Castelfiorentino
Ad without map,
try asking the advertiser for the position
try asking the advertiser for the position
Advertiser
Call
CONTACT
