Semi-detached Villa Parma
€ 410.000
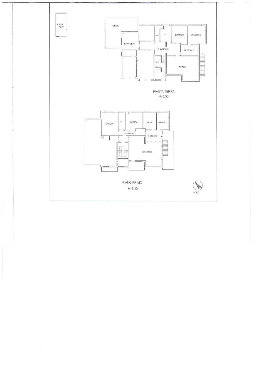
PARMA VENDESI VILLA BIFAMILIARE INDIPENDENTE ZONA GOLESE - CORNOCCHIO. A soli 5 km dal centro storico di Parma (piazza Garibaldi) vendiamo grande villa bifamiliare costruita negli anni 60, su di un appezzamento di circa mq 1300. La villa risulta così composta da piano terra di circa 230 mq con ingresso indipendente, grande taverna, 3 cantine, un bagno, ampio ripostiglio e due autorimesse. Al piano primo troviamo due appartamenti di cui uno con accesso indipendente. L’appartamento ad est, di circa mq 143 commerciali, risulta composto da ingresso, ampio salone con balcone, cucina abitabile, due matrimoniali grandi ed un bagno . L’appartamento confinante ad ovest, di circa 92 mq commerciali, risulta composto da ingresso tramite il vano scala, soggiorno con balcone, cucinotto finestrato, due camere matrimoniali, disimpegno notte e bagno. Grande sottotetto di circa mq. 230 con altezza max 2,40 mt e minima di 1,00 mt. Deposito attrezzi posto nell’angolo nord ovest del lotto. Impianti di riscaldamento autonomi. Libero da dicembre 2025. Prezzo richiesto 415.000.
Main data
| Reference | SUP074 |
| Ad date | 07/05/2025 |
| Contract | Sale |
| Typology | Semi-detached Villa |
| Surface | 340 m2 |
| Locals | 3 bathrooms |
Costs
| Price | 410.000 € |
| Price per m2 | 1.206 €/m2 |
Energy efficiency
| Energy rating | F |
Floor plans
Address and map
Parma
Mortgage calculation
Selling price:
Advance
20,00
Mortgage
80,00
Rate: -+
Payment: 1.173 per month
The results are an indicative estimate based on the data entered and do not constitute a financial offer.
Advertiser
Call
CONTACT


