Villa Frazione San Bernardo, 61, Monteu Roero
€ 225.000Casa indipendente su quattro lati tra le colline del Roero
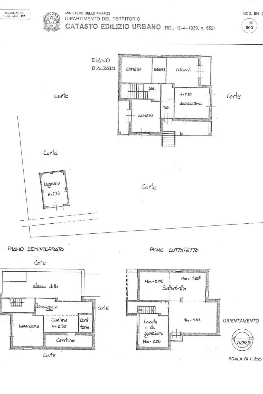
Immersa nel verde delle colline del Roero, casa indipendente libera su quattro lati, elevata su un unico livello abitativo, composto da ingresso, luminoso soggiorno con uscita sull'ampio terrazzo, ampia cucina abitabile, due spaziose camere da letto e servizio con vasca da bagno; al piano sottotetto ampio locale di sgombero con predisposizione del riscaldamento, da ultimare; al piano seminterrato tavernetta, locale lavanderia, cantina e locale caldaia di recentissima installazione. Completano la proprietà il porticato circostante, box auto doppio e noccioleto di circa mq 5000 retrostante l'abitazione e altro lotto di terreno adiacente di circa mq 8000. La proprietà viene venduta completa degli arredi Nelle vicinanze sono presenti campi da golf ed a 5 minuti a piedi è possibile raggiungere dei maneggi per la pratica di equitazione e passeggiate a cavallo. Per avere ulteriori informazioni o per fissare un appuntamento potete chiamarci ai numeri 0119723929 oppure 3356351278 o passare a trovarci in Piazza Mazzini n. 2. Inoltre, potete anche contattarci al nostro indirizzo email [email protected] Qualora foste interessati ad una valutazione GRATUITA e SENZA IMPEGNO del Vostro immobile siamo a completa disposizione! Potete trovare questa e molte altre proposte sul nostro sito internet www.agenziaimmobiliaremazzini.com
Main data
| Reference | ID2623836 |
| Ad date | 02/05/2025 |
| Contract | Sale |
| Typology | Villa |
| Surface | 230 m2 |
| Locals | 4 (2 bedrooms, 2 other), 1 bathroom, kitchen habitable |
| Plan | 2 totals |
| Construction type | Average |
| Number of terraces | 1 |
| Number of balconies | 1 |
| Garage | Absent |
| Furniture | Complete |
Costs
| Price | 225.000 € |
| Price per m2 | 978 €/m2 |
Energy efficiency
| Year built | 1990 |
| Status | Good |
| Heating | Autonomous |
| Energy rating | F |
| Energy Performance Index (IPE) | 175 kWh/m2 year |
Floor plans
Address and map
Frazione San Bernardo, 61, Monteu Roero
Mortgage calculation
Selling price:
Advance
20,00
Mortgage
80,00
Rate: -+
Payment: 643 per month
The results are an indicative estimate based on the data entered and do not constitute a financial offer.
Advertiser
Call
CONTACT


