Rustic Via Cristoforo Colombo, Cafasse
€ 165.000Casa di corte in vendita
Nel comune di Cafasse, nella tranquilla località di Monasterolo si propone in vendita una spaziosa casa semindipendente. Con una superficie di 210 mq calpestabili, questa proprietà offre ampi spazi, ideali per chi cerca una soluzione abitativa versatile
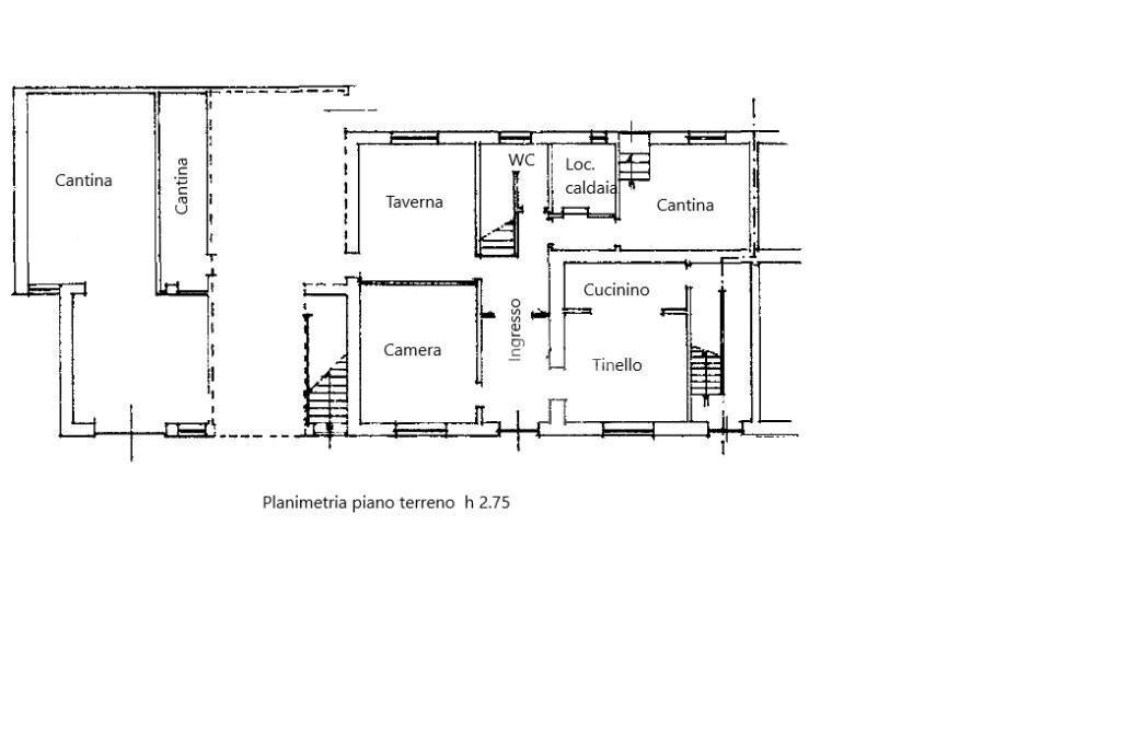
La proprietà si presenta al PT con ingresso, camera, cucina e bagno. Completa la zona abitativa una tavernetta con camino e forno. Vi è inoltre l'accesso al locale caldaia e cantina. Passando dalla tavernetta si accede al garage doppio (con portone di accesso dall’esterno) e a seguire un ampio locale adibito a laboratorio.
La scala interna porta al piano superiore dove un ampio corridoio collega una cucina abitabile da cui si accede ad una veranda sul terrazzo, 3 camere da letto ed un bagno. La scala continua accedendo al sottotetto non abitabile
La proprietà si completa con cortile antistante privato.
VI PROPONIAMO UNA VALUTAZIONE GRATUITA DEL VOSTRO IMMOBILE, CONTATTATECI SENZA ALCUN IMPEGNO ALLO 0110161588 O 3485251993. L'AGENZIA AFFILIATA TECNORETE DI FIANO METTERA' A VOSTRA DISPOSIZIONE L'ESPERIENZA MATURATA NEGLI ANNI DI PROFESSIONE E DI ATTIVITA'
La proprietà si presenta al PT con ingresso, camera, cucina e bagno. Completa la zona abitativa una tavernetta con camino e forno. Vi è inoltre l'accesso al locale caldaia e cantina. Passando dalla tavernetta si accede al garage doppio (con portone di accesso dall’esterno) e a seguire un ampio locale adibito a laboratorio.
La scala interna porta al piano superiore dove un ampio corridoio collega una cucina abitabile da cui si accede ad una veranda sul terrazzo, 3 camere da letto ed un bagno. La scala continua accedendo al sottotetto non abitabile
La proprietà si completa con cortile antistante privato.
VI PROPONIAMO UNA VALUTAZIONE GRATUITA DEL VOSTRO IMMOBILE, CONTATTATECI SENZA ALCUN IMPEGNO ALLO 0110161588 O 3485251993. L'AGENZIA AFFILIATA TECNORETE DI FIANO METTERA' A VOSTRA DISPOSIZIONE L'ESPERIENZA MATURATA NEGLI ANNI DI PROFESSIONE E DI ATTIVITA'
Main data
| Reference | 61052871 |
| Ad date | 30/04/2025 |
| Contract | Sale |
| Typology | Rustic |
| Surface | 316 m2 |
| Locals | more than 5 (4 bedrooms, 6 other), 2 bathrooms |
| Plan | 2 totals |
Costs
| Price | 165.000 € |
| Price per m2 | 522 €/m2 |
Energy efficiency
| Year built | 1950 |
| Heating | Autonomous |
| Heating Power Type | Methane |
| Energy rating | F |
| Energy performance index (EP GL, REN ) | 0.86 kWh/m3 year |
| Energy performance index (EP GL, NREN ) | 339.27 kWh/m3 year |
Floor plans
Video
Address and map
Via Cristoforo Colombo, Cafasse
Mortgage calculation
Selling price:
Advance
20,00
Mortgage
80,00
Rate: -+
Payment: 472 per month
The results are an indicative estimate based on the data entered and do not constitute a financial offer.
Advertiser
Call
CONTACT

