Shop Casalecchio di Reno
€ 450.000Casalecchio di Reno (via Quattro Novembre)
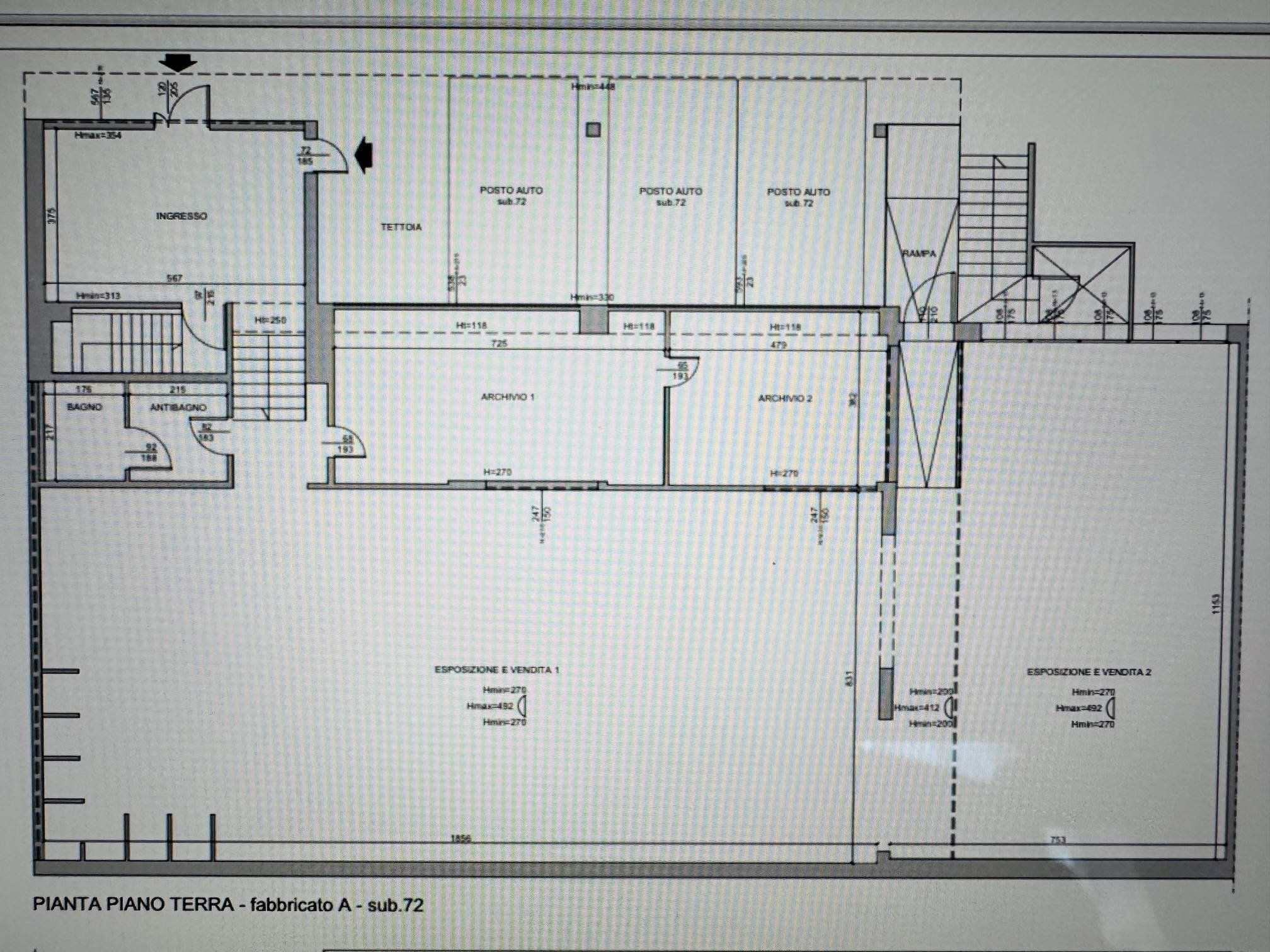
Diponiamo in vendita di ampio locale commerciale in ottimo stato, polifunzionale, in posizione strategica, con annessa ampia area cortiliva con possibilità di parcheggio di 7 auto. Il locale si sviluppa tutto su un unico livello ed è composto da locale di ingresso ad uso reception, dal quale si accede ad un ampio e luminoso open space. Completano l’immobile n. 2 uffici ed un bagno con antibagno. Possibilità di acquisto di altro immobile attiguo, ad uso magazzino, con potenzialità di cambio d’uso di mq 75 con annessa tettoia. Libero subito. Richiesta € 450.000. Per informazioni e visite Gabriele Contesini 335/58.57.032 oppure Anna Lucia Bocchi 345/82.17.895
Main data
| Reference | ID2608826 |
| Ad date | 17/04/2025 |
| Contract | Sale |
| Typology | Shop |
| Surface | 335 m2 |
| Plan | 1 totals |
| Real estate use | Commercial |
Costs
| Price | 450.000 € |
| Price per m2 | 1.343 €/m2 |
| Condominium fees | €60,00/month |
Energy efficiency
| Heating | Autonomous |
| Energy rating | Property exempt from energy certification |
Floor plans
Address and map
Casalecchio di Reno
Ad without map,
try asking the advertiser for the position
try asking the advertiser for the position
Mortgage calculation
Selling price:
Advance
20,00
Mortgage
80,00
Rate: -+
Payment: 1.287 per month
The results are an indicative estimate based on the data entered and do not constitute a financial offer.
Advertiser
Call
CONTACT


