Building land via Gerolamo Borgazzi, 143, Monza
€ 1.650.000Area edificabile commerciale, produttivo, terziario albergo
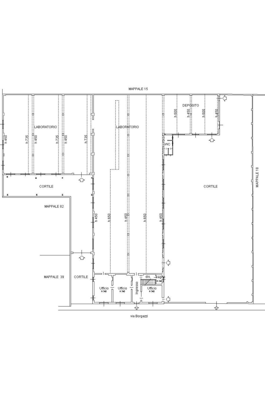
Se sei alla ricerca di un'opportunità di investimento redditizia, non cercare oltre! Proponiamo un terreno edificabile di 2.500 mq ca situato in una posizione di forte passaggio a Monza, ideale per la realizzazione di un supermercato o altre destinazioni commerciali, direzionali o turistiche. L'area offre una visibilità eccezionale e un accesso logistico ottimale, che la rendono perfetta per soddisfare le esigenze di qualsiasi attività commerciale. Attualmente, sul terreno sono presenti un capannone in buono stato di manutenzione e una palazzina uffici, oltre a un'ampia area scoperta pronta per lo sviluppo. Con una superficie commerciale di 1.200 mq e ulteriori 566 mq di magazzino o laboratorio, questa proprietà offre un'ampia flessibilità per la realizzazione di un supermercato o altri progetti commerciali. In alternativa, la destinazione direzionale, terziaria o turistico-ricettiva consente la realizzazione di 1.766 mq di spazi adatti a uffici, servizi o strutture ricettive. Non perdere l'opportunità di investire in questa posizione strategica a Monza e di sfruttare il suo potenziale di sviluppo. Contattaci oggi stesso per maggiori informazioni e per esplorare le possibilità di questo terreno edificabile unico nel suo genere!" Potenziali Clienti Interessati: Investitori Immobiliari: Gli investitori che cercano opportunità di investimento a lungo termine potrebbero essere interessati a questo terreno edificabile per sviluppare un progetto commerciale redditizio. Catene di Supermercati: Le catene di supermercati o negozi al dettaglio potrebbero essere interessate a espandere la propria presenza a Monza e potrebbero vedere questo terreno come una location ideale per un nuovo punto vendita. Sviluppatori Commerciali: Gli sviluppatori che cercano nuove opportunità di sviluppo commerciale potrebbero essere attratti dalla posizione strategica e dalle potenzialità di questo terreno edificabile. Aziende Direzionali o Turistiche: Le aziende che cercano spazi per uffici, servizi o strutture ricettive potrebbero considerare questo terreno edificabile per realizzare un nuovo quartier generale, un centro direzionale o una struttura turistico-ricettiva.
Main data
| Reference | 202456 |
| Ad date | 29/03/2024 |
| Contract | Sale |
| Typology | Building land |
| Surface | 1766 m2 |
Costs
| Price | 1.650.000 € |
| Price per m2 | 934 €/m2 |
Energy efficiency
| Energy rating | Property exempt from energy certification |
Floor plans
Address and map
via Gerolamo Borgazzi, 143, Monza
Mortgage calculation
Selling price:
Advance
20,00
Mortgage
80,00
Rate: -+
Payment: 4.719 per month
The results are an indicative estimate based on the data entered and do not constitute a financial offer.
Advertiser
Call
CONTACT


