Shed via Faliero Vezzani, Genova (neighborhood Sampierdarena)
€ 4.500 per monthPalazzina uffici -parcheggio-magazzino -Genova- Rivarolo
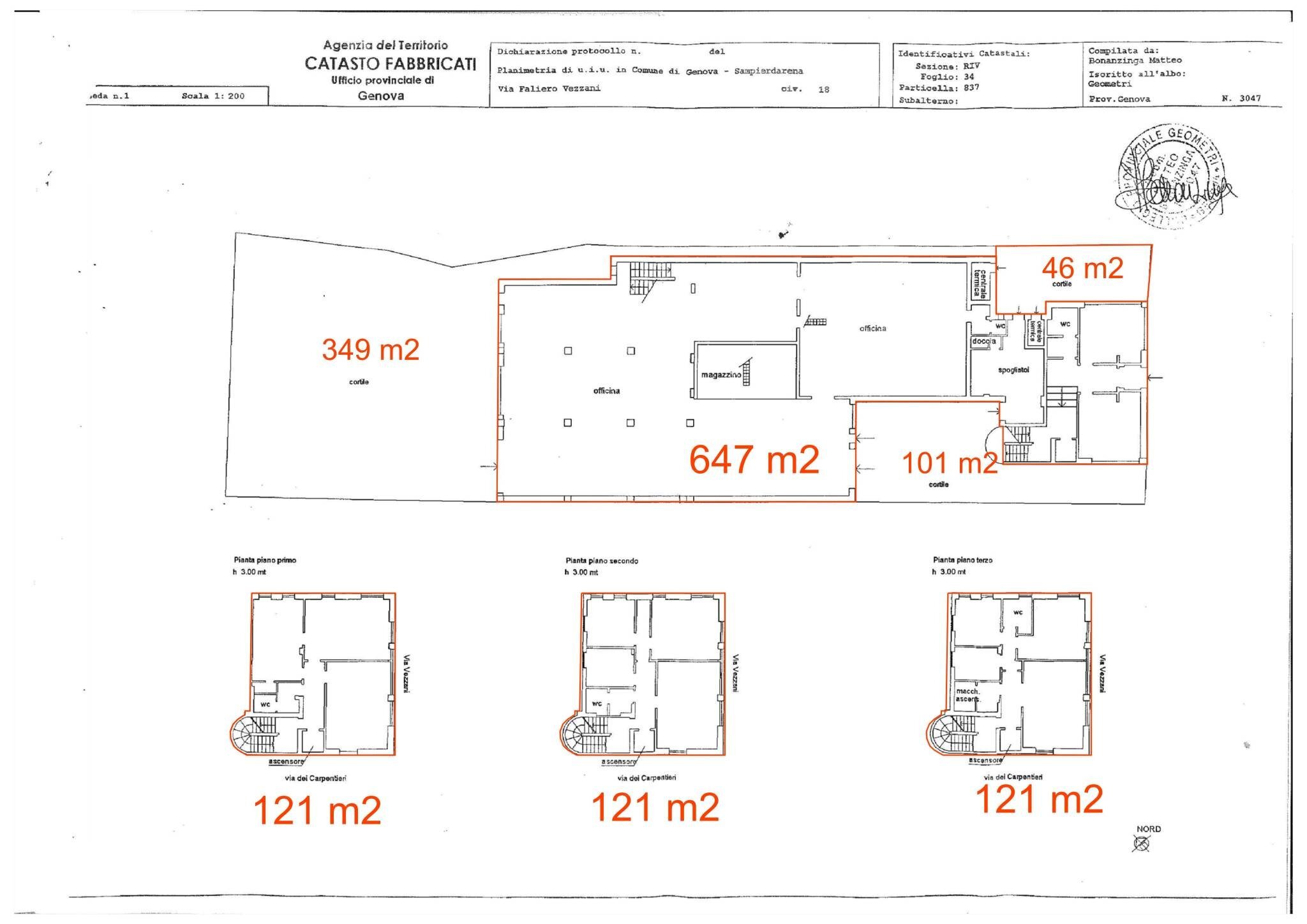
Locazione: Palazzina uffici con annesso capannone industriale utilizzabile come ampio parcheggio in parte coperto in parte esterno– Via Vezzani, Rivarolo Proponiamo in locazione, in via Vezzani, nella zona di Rivarolo, una palazzina uffici dislocata su quattro livelli, in ottime condizioni e dotata di impianti a norma. L’immobile è completato da un capannone industriale adibito ad attività produttiva, con ampio piazzale esterno, ideale per essere utilizzato come magazzino/ parcheggio annesso agli uffici.. La superficie complessiva del lotto è di circa 1.070 mq, di cui circa 412 mq destinati a superficie esterna, parzialmente coperta da una tettoia. L'accesso pedonale e carrabile è garantito direttamente da via Vezzani. Rivolgersi Immobiliare Ca.Sa. sas tel. 3939864684; www.casasas.net Planimetria, superfici, e tutti i dati degli immobili qui pubblicati, sono prettamente indicativi e non potranno essere utilizzati come parte integrante di un eventuale contratto sia di vendita che locazione della proprietà. La descrizione ha valore puramente indicativo e non costituisce elemento contrattuale. Inoltre, l'area comprende circa 1.050 mq ad uso uffici e magazzino, con ampie possibilità di utilizzo e personalizzazione degli spazi. Una proposta ideale per aziende alla ricerca di una struttura completa e ben posizionata.
Main data
| Reference | ID2600836 |
| Ad date | 23/03/2025 |
| Contract | Rent |
| Typology | Shed |
| Surface | 1094 m2 |
| Plan | 4 totals |
| Real estate use | Commercial and Industrial |
Costs
| Price | 4.500 € per month |
Energy efficiency
| Heating | Autonomous |
| Energy rating | G |
| Energy Performance Index (IPE) | 999.99 kWh/m2 year |
Floor plans
Address and map
via Faliero Vezzani, Genova - neighborhood Sampierdarena
Ad without map,
try asking the advertiser for the position
try asking the advertiser for the position
Advertiser
Call
CONTACT


