Apartment Bologna
€ 850.000
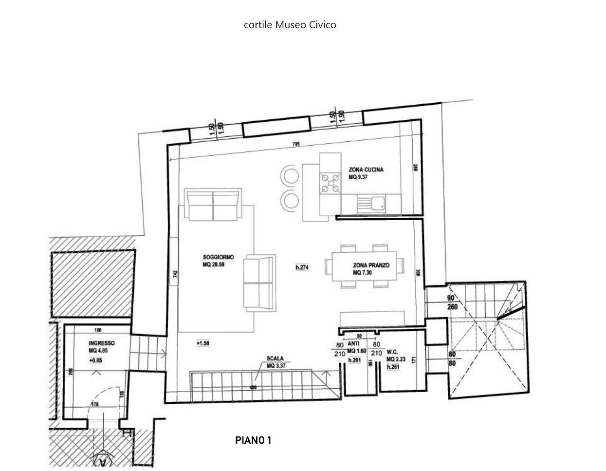
BOLOGNA - PIAZZA MAGGIORE (a 50metri) - vendiamo una NUOVA soluzione semi-indipendente su 2 livelli di circa 200mq con terrazzo di copertura di 40mq con affascinanti affacci che guardano i cortili del Museo Civico Archeologico e la Bologna medievale. La casa è disposta su 2 livelli oltre al terrazzo ed è composta da ingresso, salotto di circa 30mq oltre a zona cucina e zona pranzo, bagno finestrato e scala di accesso al terrazzo sovrastante che affaccia sul cortile interno del Museo. Zona notte composta da 4 camere, ampio guardaroba e 2 bagni oltre a cortiletto interno di circa 7mq con accesso da 2 camere. Impianti autonomi di ultima generazione con riscaldamento a pavimento, climatizzazione e Ventilazione Meccanica Controllata-VMC, Classe Energetica A3. Volendo disponiamo anche di un magazzino collegabile di altri 200mq. Se volete una casa nuova, autonoma, silenziosa, nel cuore del centro storico con affacci unici e una terrazza godibile chiamateci. Prezzo euro 850.000 rif. 02M358
Main data
| Reference | 02M358 |
| Ad date | 01/04/2025 |
| Contract | Sale |
| Typology | Apartment |
| Surface | 200 m2 |
| Locals | 3 bathrooms |
Costs
| Price | 850.000 € |
| Price per m2 | 4.250 €/m2 |
| Condominium fees | €130,00/month |
Energy efficiency
| Energy rating | A4 |
Floor plans
Address and map
Bologna
Mortgage calculation
Selling price:
Advance
20,00
Mortgage
80,00
Rate: -+
Payment: 2.431 per month
The results are an indicative estimate based on the data entered and do not constitute a financial offer.
Advertiser
Call
CONTACT


