Shop Marsala
€ 1.500 per monthLocali in affitto o vendita nella via Gambini a Marsala
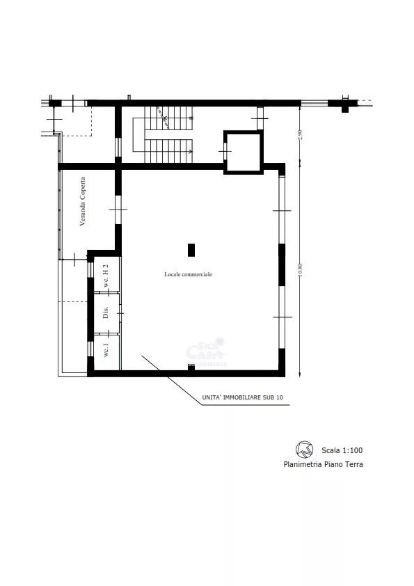
**Proposta di vendita o affitto di locali destinati ad attività direzionale o produttiva a Marsala** Sono lieto di presentare in vendita o affitto due locali situati a Marsala, precisamente nella Via Francesco Gambini . Questi spazi, attualmente affittati a Scuola, saranno disponibili a partire dal 1° luglio prossimo e fanno parte di un edificio di recente costruzione (2018) dotato di regolare agibilità. I due locali sono destinati ad attività direzionali o produttive, rendendoli idonei per una varietà di utilizzi, tra cui uffici, cliniche mediche, RSA, negozi, laboratori, palestre e scuole. È possibile affittare o acquistare i locali singolarmente oppure insieme, essendo collegati da una veranda coperta e chiusa situata sul retro, per la quale sono state ottenute tutte le autorizzazioni necessarie. Sono disponibili sia le planimetrie singole che quella complessiva. ### Descrizione dei Locali **Locale A:** - Superficie utile: mq. 89,00. - Veranda posteriore in parte coperta e chiusa, conforme al progetto. - Due aperture che si affacciano sulla corte principale. - Dotato di due servizi igienici. - Richiesta di vendita: € 135.000,00. - Richiesta di affitto: € 640,00 mensili oltre condominio. **Locale B:** - Superficie utile: mq. 221,00. - Verande posteriori ed anteriori, tutte in regola con il progetto. - Area verde posteriore esclusiva di mq. 320. - Due blocchi di servizi igienici, con un totale di sette servizi, di cui due accessibili ai disabili. - Richiesta di vendita: € 330.000,00. - Richiesta di affitto: € 1.590,00 mensili oltre condominio. ### Trattabilità I valori di vendita e affitto indicati sono limitatamente trattabili. Per ulteriori informazioni o per organizzare una visita ai locali, non esitate a contattarmi. Questa è un'opportunità imperdibile per investire in un'ottima location nel cuore di Marsala!
Main data
| Reference | 8813 |
| Ad date | 31/10/2017 |
| Contract | Rent |
| Typology | Shop |
| Surface | 220 m2 |
| Plan | 4 totals |
| Construction type | Average |
| Real estate use | Commercial |
| Mq Offices | 220 |
Costs
| Price | 1.500 € per month |
Energy efficiency
| Status | New |
| Heating | Autonomous |
| Heating Power Type | Other |
| Energy rating | D |
Address and map
Marsala
Ad without map,
try asking the advertiser for the position
try asking the advertiser for the position
Advertiser
Call
CONTACT


