Apartment Castel San Pietro Terme
€ 195.000
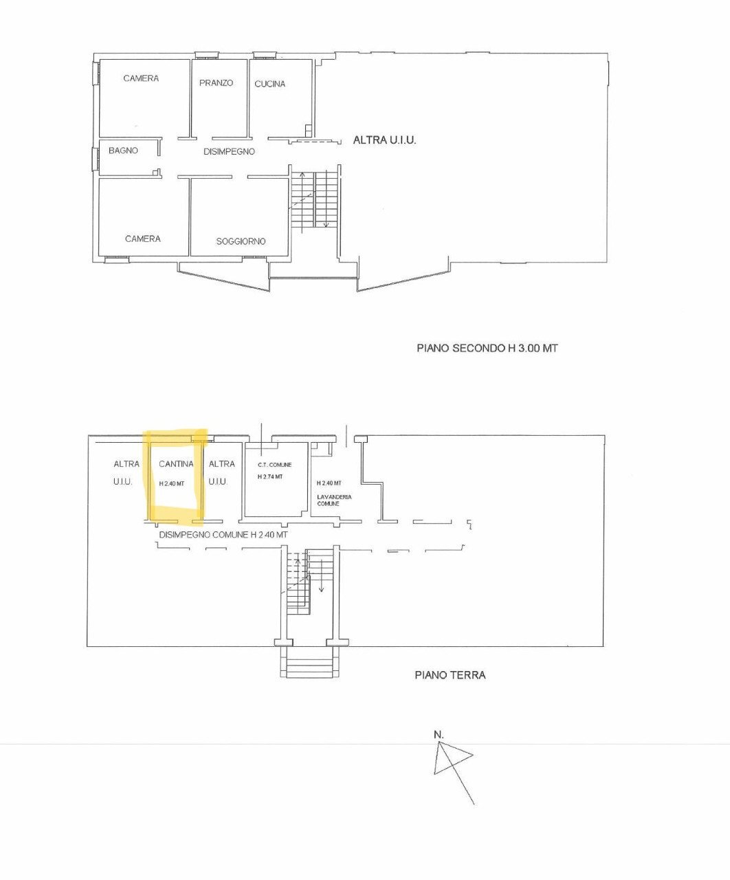
CASTEL S. PIETRO T. in pieno centro Vendesi Appartamento in piccola palazzina da 6 unita’ al 2 piano senza ascensore composto da ingresso arredabile, cucina abitabile, sala da pranzo, 3 camere, bagno e terrazza. Cantina al piano terra. Posto auto condominiale. Riscaldamento centralizzato con contacalorie e condizionatore. Garage di mq. 13 a parte euro 15.000
Main data
| Reference | TOR001 |
| Ad date | 26/03/2025 |
| Contract | Sale |
| Typology | Apartment |
| Surface | 110 m2 |
| Locals | 1 bathroom |
| Plan | 2 |
Costs
| Price | 195.000 € |
| Price per m2 | 1.773 €/m2 |
Energy efficiency
| Energy rating | E |
Floor plans
Address and map
Castel San Pietro Terme
Mortgage calculation
Selling price:
Advance
20,00
Mortgage
80,00
Rate: -+
Payment: 558 per month
The results are an indicative estimate based on the data entered and do not constitute a financial offer.
Advertiser

TORRE IMMOBILIARE
Via Meucci 25/A, Forlì
Show Phone
Call
CONTACT

