Office Bologna
€ 880.000
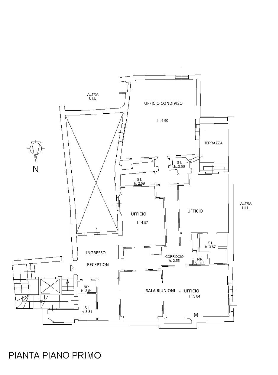
VIA RIZZOLI (centro storico) a poca distanza dalle 2 Torri in prestigioso Palazzo storico del 1500 vincolato dalla Soprintendenza delle Belle Arti ma dotato di ascensore e servizio di portineria vendiamo, al primo piano con ascensore, un elegante ufficio di circa 180mq ristrutturato nel 2014 e tuttora in ottime condizioni. Composto da ingresso/reception/attesa, due ampi uffici, sala riunioni/conferenze, ufficio per 4 postazioni e 3 bagni (due ciechi). Pavimenti alla veneziana, pareti con alcuni recuperi di affreschi, soffitti alti 3,60metri (oltre 4 metri in due camere), affacci silenziosissimi tutti interni, riscaldamento autonomo e aria condizionata, spese condominiali circa euro 100 mensili. Volendo cantina, No posto bici/moto/auto. APE "G" ep 309,16 - PREZZO EURO 880.000 Rif.02M050/2
Main data
| Reference | 02M050/4 |
| Ad date | 25/03/2025 |
| Contract | Sale |
| Typology | Office |
| Surface | 180 m2 |
| Locals | 3 bathrooms |
| Plan | 1 |
Costs
| Price | 880.000 € |
| Price per m2 | 4.889 €/m2 |
| Condominium fees | €100,00/month |
Energy efficiency
| Energy rating | G |
Floor plans
Address and map
Bologna
Mortgage calculation
Selling price:
Advance
20,00
Mortgage
80,00
Rate: -+
Payment: 2.517 per month
The results are an indicative estimate based on the data entered and do not constitute a financial offer.
Advertiser
Call
CONTACT


