Villa Castelletto Stura
€ 270.000CASTELLETTO STURA: VILLE DI NUOVA COSTRUZIONE
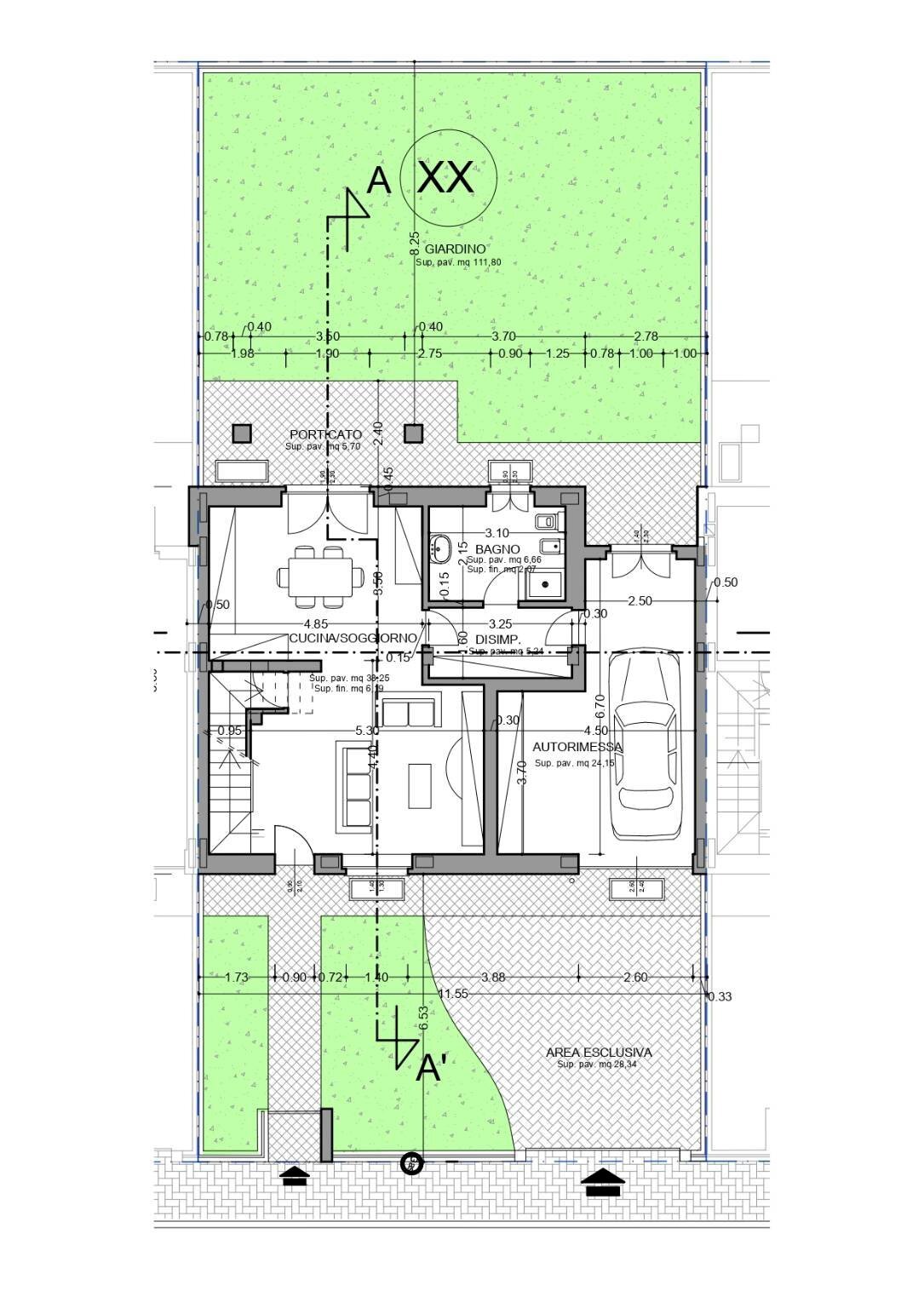
In zona residenziale, a pochi passi dal centro del paese, il complesso si presenta di nuova costruzione comodo a tutti i servizi e immerso nella natura, situato in un contesto esposto completamente al sole in tutto l'arco della giornata, il cantiere si compone di più unità abitative attualmente in fase di ultimazione di cui ancora una disponibile. Il complesso residenziale, nasce dalla volontà di costruire ville e appartamenti dalle alte prestazioni energetiche caratterizzate da una linea in stile in parte moderno con alcune parti rustiche e elegante. Design e funzionalità sono le peculiarità di questo progetto studiato per garantire e sfruttare al miglior modo ogni spazio. La villa è libera due lati con giardino privato, garage e posto auto. La zona giorno sviluppata interamente al piano terra si compone di soggiorno con cucina e il bagno di servizio, tramite la scala interna si accede alla zona notte con le tre camere da letto che si caratterizzano per l'ampio balcone e il bagno. Il cliente grazie allo stato attuale della costruzione, può predisporre qualsiasi modifica interna di redistribuzione degli spazi. Il tetto è in legno lamellare strutturale antisismico, il riscaldamento è ha pavimento, la costruzione in classe A permette un maggiore isolamento termico e acustico. L'appartamento invece si compone di soggiorno, cucina, due bagni e due camere da letto. Completa la proprietà il garage, la cantina, il giardino o terrazzo. La struttura è in cemento armato antisismica. In uffcio disponiamo di tutti i progetti in dettaglio sulla costruzione, il capitolato tecnico studiato e modificabile alle esigenze del cliente, possibilità di visionare i materiali su ville già ultimate per avere una delucidazione migliore di ogni singolo materiale utilizzato. Completa la proprietà il garage doppio, e cortile privato. A partire da 270.000,00
Main data
| Reference | ID2556618 |
| Ad date | 03/03/2025 |
| Contract | Sale |
| Typology | Villa |
| Surface | 154 m2 |
| Locals | 5 (3 bedrooms, 2 other), 2 bathrooms, kitchen habitable |
| Plan | 2 totals |
| Construction type | Average |
| Number of balconies | 1 |
| Garage | Single |
| Number of parking spaces | 1 |
| Furniture | Absent |
Costs
| Price | 270.000 € |
| Price per m2 | 1.753 €/m2 |
Energy efficiency
| Year built | 2025 |
| Status | New |
| Heating | Autonomous |
| Energy rating | A+ |
| Energy Performance Index (IPE) | 175 kWh/m2 year |
Floor plans
Address and map
Castelletto Stura
Ad without map,
try asking the advertiser for the position
try asking the advertiser for the position
Mortgage calculation
Selling price:
Advance
20,00
Mortgage
80,00
Rate: -+
Payment: 772 per month
The results are an indicative estimate based on the data entered and do not constitute a financial offer.
Advertiser
Call
CONTACT


