Independent house vicolo Ceraia, 34, Cavallirio
€ 185.000Casa indipendente in vendita a Cavallirio, con giardino
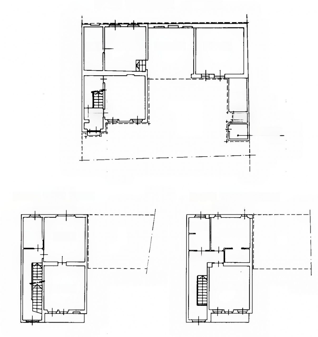
Questa casa indipendente in vendita a Cavallirio è arricchita da un grazioso giardino, un cassero e una tettoia, ideale per chi desidera un'abitazione spaziosa e confortevole. La casa, ristrutturata nel 2004, è dotata di tutti i comfort moderni ed è così composta: - piano terra con ingresso, spazioso sottoscala, 2 stanze e cantina; - primo piano con cucina abitabile, balcone, ampio soggiorno, bagno e corridoio; - secondo piano con 2 camere da letto, balcone, stanzino, bagno e corridoio; - terzo piano con ampio solaio ad uso disimpegno. La casa è dotata di riscaldamento a pavimento, garantendo un comfort ottimale durante i mesi invernali, e di infissi in PVC con doppio vetro, assicurando un'eccellente isolamento termico e acustico. Questa proprietà offre un mix perfetto tra il fascino delle case indipendenti e i moderni comfort abitativi. Situata in una zona tranquilla e residenziale di Cavallirio questa immobile è perfetto per la famiglia numerosa. Non perdere l'opportunità di acquistare questa meravigliosa casa indipendente. Per ulteriori informazioni o per fissare una visita, non esitate a contattarci. Siamo a vostra disposizione per accompagnarvi in ogni fase dell'acquisto e per rispondere a tutte le vostre domande.
Main data
| Reference | 4-CAVCER |
| Ad date | 24/06/2024 |
| Contract | Sale |
| Typology | Independent house |
| Surface | 186 m2 |
| Locals | 3 (2 bedrooms, 1 other), 2 bathrooms, kitchen habitable |
| Plan | 2 totals |
| Construction type | Average |
| Number of terraces | 1 |
| Garage | Single |
| Number of parking spaces | 4 |
| Furniture | Absent |
Costs
| Price | 185.000 € |
| Price per m2 | 995 €/m2 |
Energy efficiency
| Status | Excellent |
| Heating | Autonomous |
| Energy rating | D |
| Energy Performance Index (IPE) | 123 kWh/m2 year |
Floor plans
Address and map
vicolo Ceraia, 34, Cavallirio
Mortgage calculation
Selling price:
Advance
20,00
Mortgage
80,00
Rate: -+
Payment: 529 per month
The results are an indicative estimate based on the data entered and do not constitute a financial offer.
Advertiser
Call
CONTACT


