Four-room apartment Via Guglielmo Marconi, Chieri
€ 630 per monthMultilocale in affitto
L'ufficio è situato a pochi passi da Piazza Cavour, al primo ed ultimo piano di un piccolo stabile privo di ascensore. L'ingresso è indipendente con portoncino blindato e si apre sul primo locale finestrato che accompagna agli altri tre locali, di cui due comunicanti ed al servizio finestrato. L'immobile è stato ristrutturato nel 2007 ed il riscaldamento è autonomo a gas metano. Le spese condominiali sono irrisorie, circa 160 euro all'anno. Esclusivamente ad uso ufficio.
Main data
| Reference | 60588432 |
| Ad date | 23/03/2023 |
| Contract | Rent |
| Typology | Apartment |
| Surface | 84 m2 |
| Locals | 4 (4 other), 1 bathroom |
| Plan | 1 from 1 totals |
Costs
| Price | 630 € per month |
| Condominium fees | €13,00/month |
Energy efficiency
| Year built | 1970 |
| Heating Power Type | Methane |
| Energy rating | F |
| Energy performance index (EP GL, REN ) | 91.21 kWh/m3 year |
| Energy performance index (EP GL, NREN ) | 269.19 kWh/m3 year |
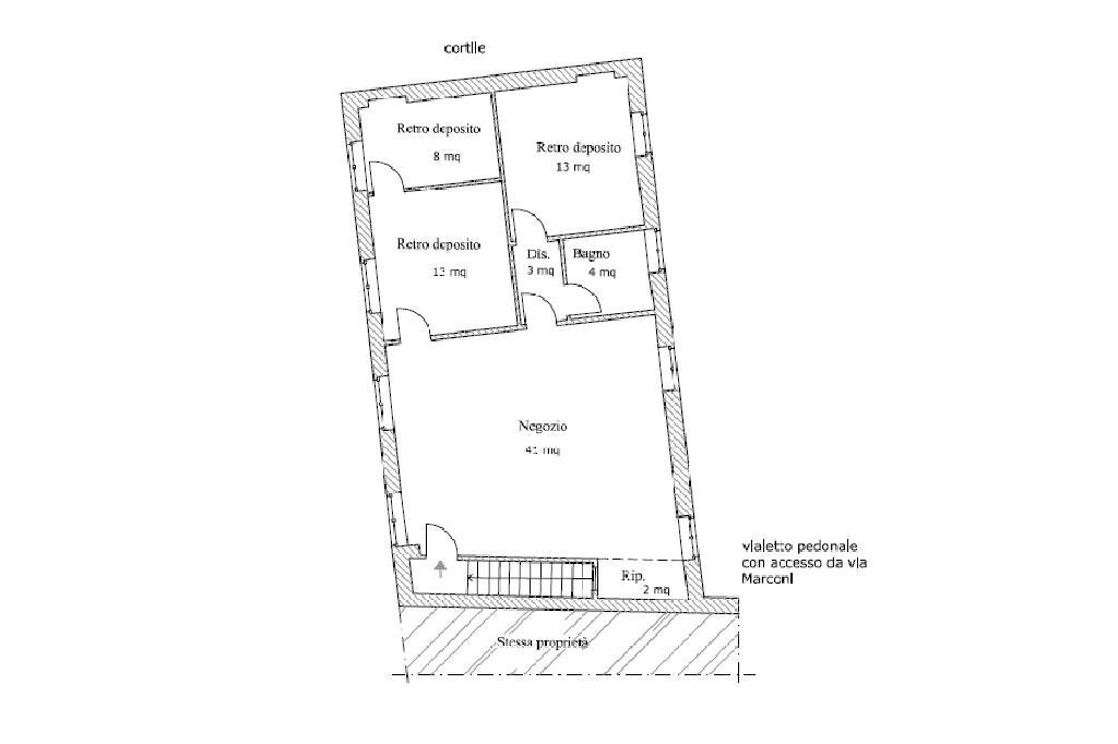
Floor plans
Video
Address and map
Via Guglielmo Marconi, Chieri
Advertiser
Call
CONTACT

