Portion of a house Via Coriano, San Clemente
€ 480.000Porzione di bifamiliare in vendita
A pochi km da Riccione,
in posizione dominante e panoramica, immersa nel verde ma comoda a tutti i servizi offerti dai vicini centri abitati,
porzione di villa bifamiliare indipendente terra-cielo, con 1650 mq di giardino privato.
La soluzione viene venduta in stato di GREZZO AVANZATO, quindi con opere murarie completate (ad eccezione delle divisioni interne), e con confini perimetrali delineati e separati.
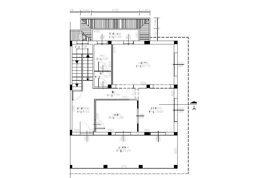
La zona abitativa è estremamente ampia e luminosa, ed è suddivisa su due piani.
Completano la proprietà, oltre al grande giardino privato, la zona rimesse al piano seminterrato (comunicante con il piano terra), la zona mansardata (comunicante con il piano primo) e gli ampi balconi e porticati panoramici.
Attualmente esiste la possibilità di scelta tra le due porzioni della villa, speculari ed identiche per quanto riguarda dotazioni e metratura.
Questa proprietà, che si distingue per la sua architettura moderna e funzionale, rappresenta una rara opportunità per chi aspira a una vita all'insegna del lusso e della serenità.
Le immagini - render hanno il solo scopo di illustrare possibili soluzioni di arredamento.
FISSA SUBITO UN APPUNTAMENTO PER VISIONARE QUESTO IMMOBILE: 0541-601154.
Ogni agenzia ha un proprio titolare ed è autonoma.
in posizione dominante e panoramica, immersa nel verde ma comoda a tutti i servizi offerti dai vicini centri abitati,
porzione di villa bifamiliare indipendente terra-cielo, con 1650 mq di giardino privato.
La soluzione viene venduta in stato di GREZZO AVANZATO, quindi con opere murarie completate (ad eccezione delle divisioni interne), e con confini perimetrali delineati e separati.
La zona abitativa è estremamente ampia e luminosa, ed è suddivisa su due piani.
Completano la proprietà, oltre al grande giardino privato, la zona rimesse al piano seminterrato (comunicante con il piano terra), la zona mansardata (comunicante con il piano primo) e gli ampi balconi e porticati panoramici.
Attualmente esiste la possibilità di scelta tra le due porzioni della villa, speculari ed identiche per quanto riguarda dotazioni e metratura.
Questa proprietà, che si distingue per la sua architettura moderna e funzionale, rappresenta una rara opportunità per chi aspira a una vita all'insegna del lusso e della serenità.
Le immagini - render hanno il solo scopo di illustrare possibili soluzioni di arredamento.
FISSA SUBITO UN APPUNTAMENTO PER VISIONARE QUESTO IMMOBILE: 0541-601154.
Ogni agenzia ha un proprio titolare ed è autonoma.
Main data
| Reference | 61018328 |
| Ad date | 18/02/2025 |
| Contract | Sale |
| Typology | Portion of a house |
| Surface | 375 m2 |
| Locals | more than 5 (6 other), 2 bathrooms |
| Plan | 1 from 3 totals |
Costs
| Price | 480.000 € |
| Price per m2 | 1.280 €/m2 |
Energy efficiency
| Year built | 2024 |
| Heating | Autonomous |
| Heating Power Type | Other |
| Energy rating | A1 |
Floor plans
Video
Address and map
Via Coriano, San Clemente
Mortgage calculation
Selling price:
Advance
20,00
Mortgage
80,00
Rate: -+
Payment: 1.373 per month
The results are an indicative estimate based on the data entered and do not constitute a financial offer.
Advertiser
Call
CONTACT

