Rustic via Colombo, 16, Nole
€ 185.000CASCINALE CANAVESANO
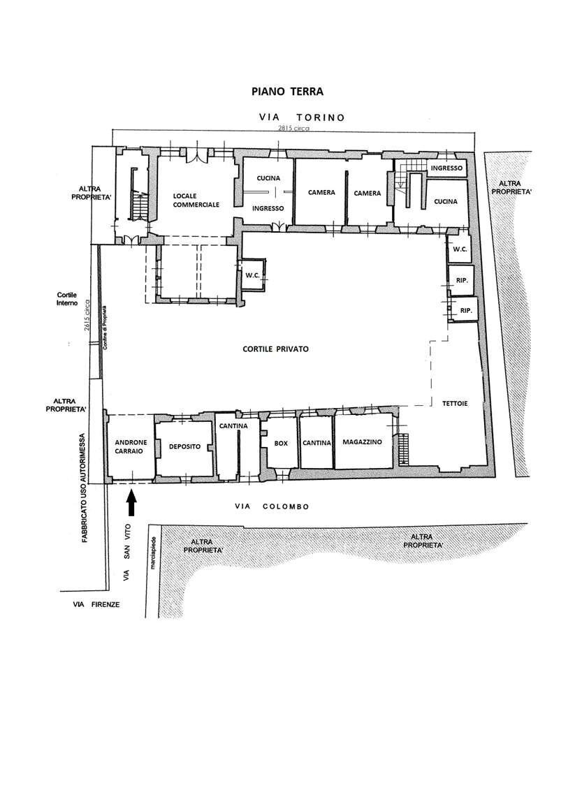
Nel centro di Nole, casale canavesano di ampia metratura, con tettoie e travate che circondano la corte centrale di circa 250 mq, completamente indipendente. Il piano terreno è composto da due unità abitative da ristrutturare, la prima costituita da un disimpegno d'ingresso, cucina, due camere e w.c., mentre la seconda da un locale uso cucina, bagno e due piccoli vani. A concludere il piano vi è un locale commerciale con ingresso indipendente, composto da un vano open space di circa 80 mq. Al primo piano trovano posto altre due abitazioni, una totalmente da ristrutturare formata da cucina, camera, balcone ed ampio terrazzo scoperto, mentre la seconda ristrutturata ed abitabile subito, è costituita da cucina, soggiorno, due camere da letto, disimpegno, bagno e balcone. Un ampio sottotetto allo stato grezzo forma il secondo ed ultimo piano. Grazie alle sua indipendenza, alla posizione centralissima e alla metratura elevata, l'intera proprietà può soddisfare le esigenze di chi in questo momento è alla ricerca di una bifamiliare o addirittura di una trifamiliare. Ottimo investimento per ditte o imprese che intendono realizzare più unità abitative e commerciali.
Main data
| Reference | V002156 |
| Ad date | 08/01/2024 |
| Contract | Sale |
| Typology | Rustic |
| Surface | 370 m2 |
| Locals | more than 5 (5 bedrooms, 6 other), 3 bathrooms |
| Construction type | Average |
| Number of terraces | 1 |
| Number of balconies | 4 |
| Garage | Absent |
| Furniture | Absent |
Costs
| Price | 185.000 € |
| Price per m2 | 500 €/m2 |
Energy efficiency
| Year built | 1920 |
| Status | To be restored |
| Heating | Autonomous |
| Energy rating | F |
| Energy Performance Index (IPE) | 503.62 kWh/m2 year |
Floor plans
Address and map
via Colombo, 16, Nole
Mortgage calculation
Selling price:
Advance
20,00
Mortgage
80,00
Rate: -+
Payment: 529 per month
The results are an indicative estimate based on the data entered and do not constitute a financial offer.
Advertiser
Call
CONTACT

