Independent house via Torino, 22, Lanzo Torinese
€ 123.000PORZIONE DI TRIFAMILIARE
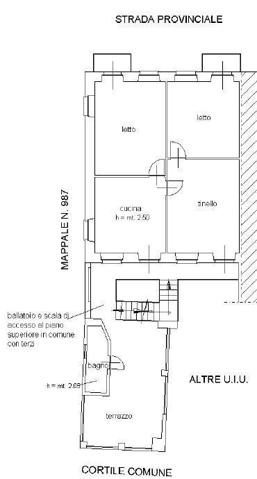
A Lanzo Torinese, in posizione comoda ai servizi e al centro storico del paese e alle passeggiate, proponiamo in vendita una porzione di casa composta da due appartamenti di 3 camere ciascuno, due cantine di circa 55mq, due box auto e ulteriore fienile nel cortile della proprietà. L'appartamento al pian terreno è composto da cucina, soggiorno, due camere, bagno esterno; giardino privato e cantina. Il secondo appartamento è invece posto al primo piano dell'abitazione ed è anch'esso composto da cucina, soggiorno con un bel caminetto ventilato in muratura, due camere, bagno esterno e cantina. A completare quest'unità uno splendido terrazzo coperto di circa 27 mq. In entrambi gli alloggi ci sono le predisposizioni per realizzare un'ulteriore bagno Al pian terreno trovano posto i due box auto, uno singolo di 14 mq e l'altro, decisamente più spazioso di circa 22mq, con possibilità di ricovero per due autovetture. Da uno dei due garage si accede al cortile dove è posizionato un fienile da poter utilizzare come locale deposito o come ricovero per gli attrezzi. Gli ingressi indipendenti, garantiscono privacy e autonomia, riducendo al minimo le parti in comune tra le due abitazioni. Gli impianti di riscaldamento, termoconvettori a gas, gli impianti e i contatori sono già stati separati. L'immobile si trova a pochi minuti dalla stazione, dal centro e dalle passeggiate lungo la Stura o la Corona Verde.
Main data
| Reference | V002311 |
| Ad date | 07/09/2024 |
| Contract | Sale |
| Typology | Independent house |
| Surface | 240 m2 |
| Locals | more than 5 (6 bedrooms, 2 other), 2 bathrooms |
| Construction type | Average |
| Number of terraces | 1 |
| Number of balconies | 3 |
| Garage | Double |
Costs
| Price | 123.000 € |
| Price per m2 | 513 €/m2 |
Energy efficiency
| Heating | Autonomous |
| Energy rating | D |
| Energy Performance Index (IPE) | 74.87 kWh/m2 year |
Floor plans
Address and map
via Torino, 22, Lanzo Torinese
Mortgage calculation
Selling price:
Advance
20,00
Mortgage
80,00
Rate: -+
Payment: 352 per month
The results are an indicative estimate based on the data entered and do not constitute a financial offer.
Advertiser
Call
CONTACT

