Villa via Antonio Monsignor, San Giorgio Canavese
€ 269.000Villa in vendita a San Giorgio Canavese
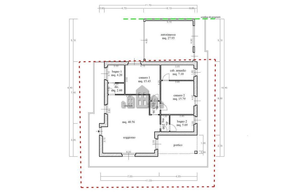
Opportunità unica a San Giorgio Canavese, poco distante dal centro e dalla stazione dei Carabinieri dove è presente un terreno edificabile con ancora due lotti disponibili. La costruzione sarà totalmente indipendente, su un unico livello abitativo, con la possibilità di aggiungere una mansarda e un piano interrato, il tutto progettato per garantire il massimo comfort e risparmio energetico, in linea con le normative attuali. Tra le soluzioni tecnologiche incluse, non mancherà l'installazione di pannelli fotovoltaici, per un'abitazione al passo coi tempi e a basso impatto energetico. Da progetto, la villa sarà caratterizzata da una zona giorno ampia e luminosa, che si potrà decidere se mantenere aperta o dividere tra cucina e sala a seconda delle proprie preferenze. La superficie abitativa includerà due camere da letto, doppi servizi e un'autorimessa all'americana direttamente sul piano, pratica e funzionale. Il tutto affaccerà sul porticato che circonda il piano, a sfioro sul giardino privato di complessivamente circa 300 metri quadrati. Il grande vantaggio di questa proposta è la possibilità di personalizzare interamente la casa, scegliendo la disposizione interna, i materiali e i colori, per creare un'abitazione che rispecchi pienamente i propri gusti ed esigenze. Investire in una nuova costruzione offre numerosi vantaggi rispetto all'acquisto di un immobile usato: non dovrai preoccuparti di lavori di aggiornamento o manutenzione per molti anni, e potrai godere di un comfort abitativo elevato, grazie all'efficienza energetica che permetterà un risparmio immediato sui costi di riscaldamento e dispersione termica. Se desideri maggiori informazioni su questa opportunità o scoprire come si procede all'acquisto di una casa di prossima realizzazione, non esitare a contattarci!
Main data
| Reference | RO_12.4 |
| Ad date | 25/09/2024 |
| Contract | Sale |
| Typology | Villa |
| Surface | 147 m2 |
| Locals | 4 (2 bedrooms, 2 other), 2 bathrooms, kitchen on sight |
| Plan | 1 totals |
| Construction type | Average |
| Garage | Double |
| Number of parking spaces | 3 |
| Furniture | Absent |
Costs
| Price | 269.000 € |
| Price per m2 | 1.830 €/m2 |
Energy efficiency
| Status | New |
| Heating | Autonomous |
| Energy rating | Property exempt from energy certification |
Floor plans
Address and map
via Antonio Monsignor, San Giorgio Canavese
Mortgage calculation
Selling price:
Advance
20,00
Mortgage
80,00
Rate: -+
Payment: 769 per month
The results are an indicative estimate based on the data entered and do not constitute a financial offer.
Advertiser

Canavese Case SNC
Via Torino 16/E, Cuorgnè
Show Phone
Call
CONTACT

