Shed Casalecchio di Reno
€ 350.000
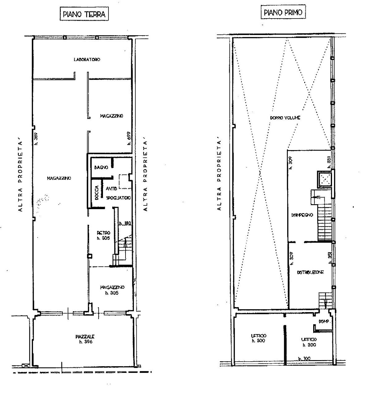
vendesi NELLA ZONA COMMERCIALE DI CASALECCHIO DI RENO DISPONIAMO DI CAPANNONE DI MQ 300 , area cortiliva privata e recintata , RECENTISSIMA COSTRUZIONE DOTATO DI RISCALDAMENTO E ARIA CONDIZIONATA AMPIA AREA CORTILIVA CONDOMINIALE DEDICATA A PARCHEGGIO , IDEALE ANCHE PER SHOW ROOM euro 350.000,00 i AMPIA DISPONIBILITA’ PER VISITE IN LOCO riferimento annuncio sbc019
Main data
| Reference | SBC019 |
| Ad date | 08/11/2024 |
| Contract | Sale |
| Typology | Shed |
| Surface | 300 m2 |
| Locals | 2 bathrooms |
Costs
| Price | 350.000 € |
| Price per m2 | 1.167 €/m2 |
| Condominium fees | €1,00/month |
Energy efficiency
| Energy rating | Property exempt from energy certification |
Floor plans
Address and map
Casalecchio di Reno
Mortgage calculation
Selling price:
Advance
20,00
Mortgage
80,00
Rate: -+
Payment: 1.001 per month
The results are an indicative estimate based on the data entered and do not constitute a financial offer.
Advertiser
Call
CONTACT


