Villa via Stefano Ortolani, Ravenna (neighborhood Porto Corsini)
€ 295.000CASALBORSETTI, Casa indipendente con ampio giardino
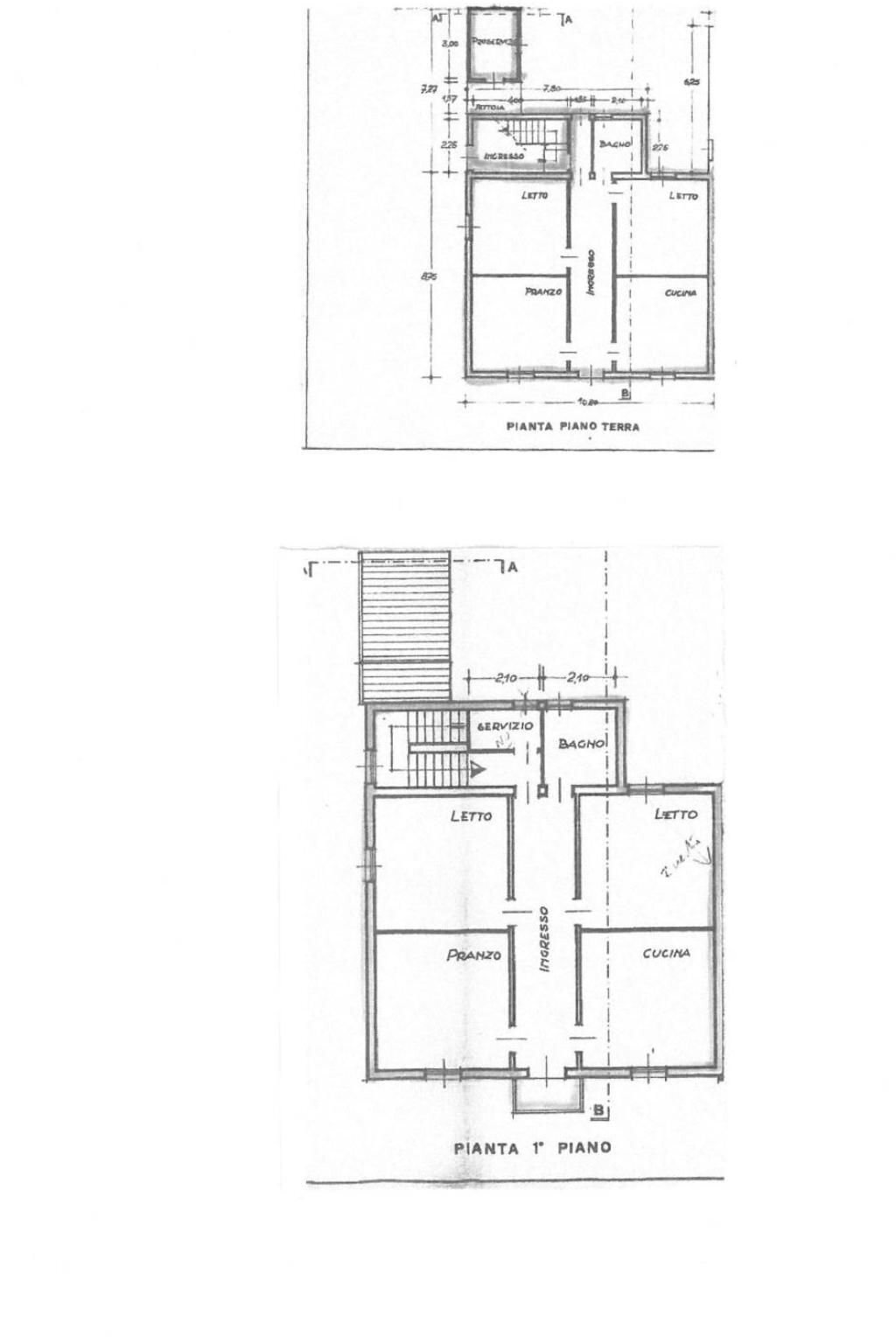
CASALBORSETTI, Zona sud, in prima linea, a pochi passi dal mare, casa indipendente con ampio giardino, posta ai piani terra e primo, composta da due appartamenti: al piano terra: ingresso, soggiorno, sala da pranzo con cucina abitabile, disimpegno, due camere da letto matrimoniali, bagno. L'abitazione al piano primo ha l'ingresso sia dall'esterno sia dall'interno ed e composta da: ingresso, soggiorno, sala da pranzo con cucina abitabile, disimpegno, due camere da letto matrimoniali, bagno, balcone. Cantina/vano tecnico caldaia al piano terra. €. 295.000 Possibilità di altra abitazione abbinata sviluppata al piano terra con ampia corte privata, composta da: cucina, tre camere, doppi servizi, posto auto. Prezzo su richiesta.
Main data
| Reference | ID2398592 |
| Ad date | 08/11/2024 |
| Contract | Sale |
| Typology | Villa |
| Surface | 237 m2 |
| Locals | more than 5 (6 bedrooms, 2 other), 2 bathrooms, kitchen habitable |
| Plan | 2 totals |
| Construction type | Average |
| Number of balconies | 1 |
| Number of parking spaces | 2 |
| Furniture | Partial |
Costs
| Price | 295.000 € |
| Price per m2 | 1.245 €/m2 |
Energy efficiency
| Year built | 1954 |
| Status | Good |
| Heating | Autonomous |
| Energy rating | Property exempt from energy certification |
Floor plans
Address and map
via Stefano Ortolani, Ravenna - neighborhood Porto Corsini
Mortgage calculation
Selling price:
Advance
20,00
Mortgage
80,00
Rate: -+
Payment: 844 per month
The results are an indicative estimate based on the data entered and do not constitute a financial offer.
Call
CONTACT


