Four-room apartment via Dino Col, Genova (neighborhood Sampierdarena)
€ 89.000Sampierdarena via Dino Col 7 vani da ristrutturare balcone
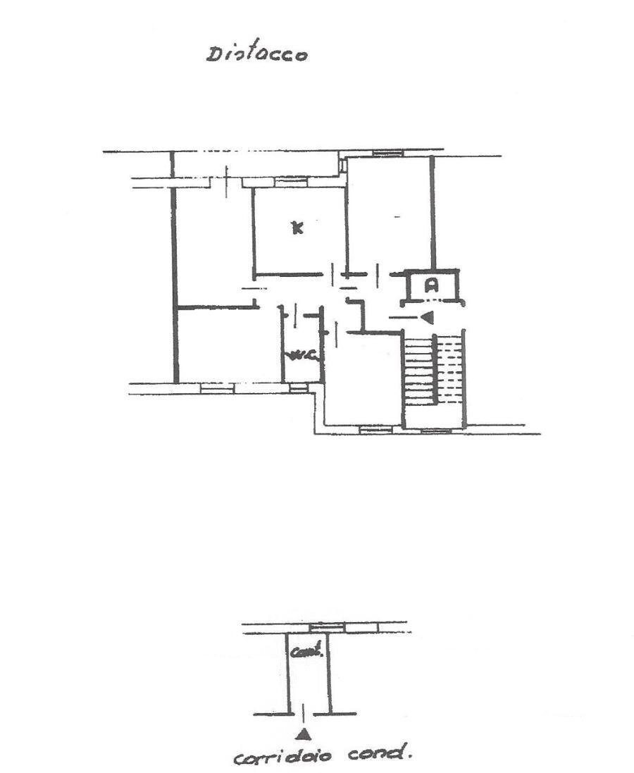
Sampierdarena, Via Dino Col, parte iniziale, in contesto privato con posteggio condominiale proponiamo ampio 7 vani, primo piano con ascensore, composto da: ingresso, 4 grandi stanze, cucina abitabile, bagno, balconata con esposizione levante, soleggiatissimo. Riscaldamento centralizzato con termo valvole. L'immobile è dotato di ampia cantina di proprietà al piano terreno. Situato in contesto residenziale privato con cancello elettrico e dotato di posteggio condominiale. La zona è centrale, servita da mezzi di trasporto e a pochi passi da Via Cantore (palazzo Matitone). Richiesta € 89.000 trattabili.
Main data
| Reference | 7 vani Dino Col |
| Ad date | 19/10/2024 |
| Contract | Sale |
| Typology | Apartment |
| Surface | 100 m2 |
| Locals | 4 (3 bedrooms, 1 other), 1 bathroom, kitchen habitable |
| Plan | 1 from 5 totals |
| Construction type | Average |
| Number of balconies | 1 |
| Garage | Absent |
| Furniture | Absent |
Costs
| Price | 89.000 € |
| Price per m2 | 890 €/m2 |
| Condominium fees | €130,00/month |
Energy efficiency
| Year built | 1958 |
| Status | To be restored |
| Heating | Centralized |
| Energy rating | G |
| Energy Performance Index (IPE) | 178.13 kWh/m2 year |
Floor plans
Address and map
via Dino Col, Genova - neighborhood Sampierdarena
Mortgage calculation
Selling price:
Advance
20,00
Mortgage
80,00
Rate: -+
Payment: 255 per month
The results are an indicative estimate based on the data entered and do not constitute a financial offer.
Advertiser
Call
CONTACT


