Four-room apartment Via Paolo Borsellino, 3, Manta
€ 209.000
MANTA - “ La felicità non è un posto in cui arrivare ma una casa in cui tornare “ e cosa c’è di più bello di tornare in una casa dove tranquillità, comfort e servizi si uniscono in una sola definizione?
Quella che vi stiamo per proporre è una soluzione ideale sia come prima casa che per investimento data la centralità e la tipologia di immobile.
L’alloggio è sito in Via Paolo Borsellino, una delle vie più ricercate nel comune di Manta grazie anche alle costruzioni recenti dove non manca nulla!
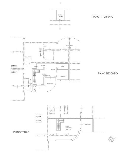
L’appartamento in questione, sviluppato due livelli, si trova al secondo e terzo piano di un condominio dotato di ascensore.
All’ingresso ci accoglie un piccolo corridoio che ci conduce alla zona giorno dove troviamo cucina dotata di finestra, bagno con doccia e soggiorno con doppia uscita sul terrazzo di circa 16 mq.
Salendo ancora di un piano troviamo una camera da letto matrimoniale con uscita sul secondo terrazzino, un ulteriore ambiente dove è possibile creare una seconda camera più piccola e infine il bagno con vasca.
Completano la proprietà il box auto nel piano seminterrato e la cantina di pertinenza.
Nel complesso l'immobile si presenta oggi in ottimo stato, le portefinestre e le finestre sono tutte in legno e dotate di doppio vetro. La zona fortemente ricercata, l’esposizione e la tipologia rendono questa proposta un vero affare
Ultimo, ma non per importanza, il riscaldamento è autonomo e le spese di gestione sono contenute.
Da vedere!
PER QUALSIASI INFORMAZIONE NON ESITATE A CONTATTARCI. SIAMO DISPONIBILI A FAR VISIONARE L'IMMOBILE DAL LUNEDÌ ALLA DOMENICA.
Seguiteci sui social:
Facebook (https://www.facebook.com/GruppoMonvisoImmobiliare)
Instagram (https://www.instagram.com/gruppomonvisoimmobiliare)
Quella che vi stiamo per proporre è una soluzione ideale sia come prima casa che per investimento data la centralità e la tipologia di immobile.
L’alloggio è sito in Via Paolo Borsellino, una delle vie più ricercate nel comune di Manta grazie anche alle costruzioni recenti dove non manca nulla!
L’appartamento in questione, sviluppato due livelli, si trova al secondo e terzo piano di un condominio dotato di ascensore.
All’ingresso ci accoglie un piccolo corridoio che ci conduce alla zona giorno dove troviamo cucina dotata di finestra, bagno con doccia e soggiorno con doppia uscita sul terrazzo di circa 16 mq.
Salendo ancora di un piano troviamo una camera da letto matrimoniale con uscita sul secondo terrazzino, un ulteriore ambiente dove è possibile creare una seconda camera più piccola e infine il bagno con vasca.
Completano la proprietà il box auto nel piano seminterrato e la cantina di pertinenza.
Nel complesso l'immobile si presenta oggi in ottimo stato, le portefinestre e le finestre sono tutte in legno e dotate di doppio vetro. La zona fortemente ricercata, l’esposizione e la tipologia rendono questa proposta un vero affare
Ultimo, ma non per importanza, il riscaldamento è autonomo e le spese di gestione sono contenute.
Da vedere!
PER QUALSIASI INFORMAZIONE NON ESITATE A CONTATTARCI. SIAMO DISPONIBILI A FAR VISIONARE L'IMMOBILE DAL LUNEDÌ ALLA DOMENICA.
Seguiteci sui social:
Facebook (https://www.facebook.com/GruppoMonvisoImmobiliare)
Instagram (https://www.instagram.com/gruppomonvisoimmobiliare)
Main data
| Reference | ID2272521 |
| Ad date | 19/07/2024 |
| Contract | Sale |
| Typology | Apartment |
| Surface | 100 m2 |
| Locals | 4 (2 bedrooms, 2 other), 2 bathrooms, kitchen semi habitable |
| Plan | 2 (Top floor) from 3 totals |
| Construction type | Average |
| Occupied | Free |
| Number of terraces | 2 |
| Box number | 1 |
| Garage | Single |
| Furniture | Partial |
Costs
| Price | 209.000 € |
| Price per m2 | 2.090 €/m2 |
| Condominium fees | €60,00/month |
Energy efficiency
| Year built | 2002 |
| Status | Excellent |
| Air Conditioning | System preparation |
| Heating | Autonomous |
| Heating System Type | to radiators |
| Heating Power Type | Methane |
| External frames | Double glass / Wood |
| Energy rating | C |
| Energy Performance Index (IPE) | 118.606 kWh/m2 year |
Floor plans
Address and map
Via Paolo Borsellino, 3, Manta
Mortgage calculation
Selling price:
Advance
20,00
Mortgage
80,00
Rate: -+
Payment: 598 per month
The results are an indicative estimate based on the data entered and do not constitute a financial offer.
Advertiser
Call
CONTACT


