Terraced Villa Via Tondelli, San Prospero
€ 245.000Villa a schiera d'angolo in vendita
San Prospero – Villette quadrifoglio di nuova costruzione
In una tranquilla frazione del Comune di San Prospero sono in fase di realizzazione quattro villette a quadrifoglio, ciascuna con ingresso indipendente e giardino privato.
Le abitazioni si sviluppano su due soli livelli, offrendo spazi funzionali e ben distribuiti:
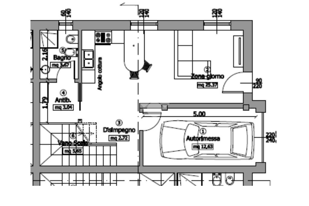
Piano terra: soggiorno con angolo cottura, bagno, autorimessa privata e accesso diretto al giardino esclusivo.
Primo piano: due camere da letto, studio e secondo bagno, impreziositi dal caratteristico tetto in legno a vista.
Dotazioni e caratteristiche: riscaldamento autonomo a pavimento, cappotto termico, infissi esterni di nuova generazione, impianto fotovoltaico da 1,5 kw con predisposizione fino a 5kw, tapparelle elettriche con apertura e chiusura centralizzata, classe energetica prevista A3.
Per maggiori informazioni o per fissare una visita contattaci al 059.850446 (anche WhatsApp).
In una tranquilla frazione del Comune di San Prospero sono in fase di realizzazione quattro villette a quadrifoglio, ciascuna con ingresso indipendente e giardino privato.
Le abitazioni si sviluppano su due soli livelli, offrendo spazi funzionali e ben distribuiti:
Piano terra: soggiorno con angolo cottura, bagno, autorimessa privata e accesso diretto al giardino esclusivo.
Primo piano: due camere da letto, studio e secondo bagno, impreziositi dal caratteristico tetto in legno a vista.
Dotazioni e caratteristiche: riscaldamento autonomo a pavimento, cappotto termico, infissi esterni di nuova generazione, impianto fotovoltaico da 1,5 kw con predisposizione fino a 5kw, tapparelle elettriche con apertura e chiusura centralizzata, classe energetica prevista A3.
Per maggiori informazioni o per fissare una visita contattaci al 059.850446 (anche WhatsApp).
Main data
| Reference | 60933789 |
| Ad date | 18/07/2024 |
| Contract | Sale |
| Typology | Terraced Villa |
| Surface | 135 m2 |
| Locals | 4 (4 other) |
| Plan | 1 from 2 totals |
Costs
| Price | 245.000 € |
| Price per m2 | 1.815 €/m2 |
Energy efficiency
| Year built | 2024 |
| Heating | Autonomous |
| Energy rating | A3 |
| Energy performance index (EP GL, REN ) | 52 kWh/m3 year |
| Energy performance index (EP GL, NREN ) | 23 kWh/m3 year |
Floor plans
Video
Address and map
Via Tondelli, San Prospero
Mortgage calculation
Selling price:
Advance
20,00
Mortgage
80,00
Rate: -+
Payment: 701 per month
The results are an indicative estimate based on the data entered and do not constitute a financial offer.
Advertiser
Call
CONTACT

