Three-room apartment Via Indipendenza, Santo Stefano di Magra
€ 79.000Trilocale in vendita
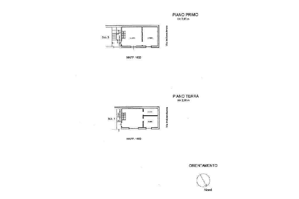
Santo Stefano di Magra - Al piano terra di soluzione bifamiliare, proponiamo appartamento di tre locali disposto su due livelli.
Al piano terra si sviluppa la zona giorno composta da un luminoso soggiorno arredato con divano e mobile a parete e da una cucina abitabile dotata di ogni comfort.
Il bagno è finestrato e dotato di box doccia.
Tramite sia scala esterna che scala interna si raggiunge il primo piano dove si sviluppa la zona notte con un'ampia camera matrimoniale e una seconda cameretta, ove è possibile ricavare una cabina armadi o un secondo bagno grazie alla presenza degli scarichi al piano.
L'appartamento si presenta in buono stato, il piano terra è stato di recente ristrutturato, il piano primo invece necessita di qualche lavoro di manutenzione.
L'esposizione è ottimale per tutto l'arco della giornata.
Possibilità di acquisto con fondi pertinenziali.
Al piano terra si sviluppa la zona giorno composta da un luminoso soggiorno arredato con divano e mobile a parete e da una cucina abitabile dotata di ogni comfort.
Il bagno è finestrato e dotato di box doccia.
Tramite sia scala esterna che scala interna si raggiunge il primo piano dove si sviluppa la zona notte con un'ampia camera matrimoniale e una seconda cameretta, ove è possibile ricavare una cabina armadi o un secondo bagno grazie alla presenza degli scarichi al piano.
L'appartamento si presenta in buono stato, il piano terra è stato di recente ristrutturato, il piano primo invece necessita di qualche lavoro di manutenzione.
L'esposizione è ottimale per tutto l'arco della giornata.
Possibilità di acquisto con fondi pertinenziali.
Main data
| Reference | 60932709 |
| Ad date | 15/07/2024 |
| Contract | Sale |
| Typology | Apartment |
| Surface | 60 m2 |
| Locals | 3 (3 other), 1 bathroom |
| Plan | 1 totals |
Costs
| Price | 79.000 € |
| Price per m2 | 1.317 €/m2 |
Energy efficiency
| Year built | 1960 |
| Heating | Autonomous |
| Heating Power Type | Methane |
| Energy rating | G |
| Energy Performance Index (IPE) | - |
Floor plans
Video
Address and map
Via Indipendenza, Santo Stefano di Magra
Mortgage calculation
Selling price:
Advance
20,00
Mortgage
80,00
Rate: -+
Payment: 226 per month
The results are an indicative estimate based on the data entered and do not constitute a financial offer.
Advertiser
Call
CONTACT

