Independent house via Abele Damiani, Castellammare del Golfo
€ 160.000
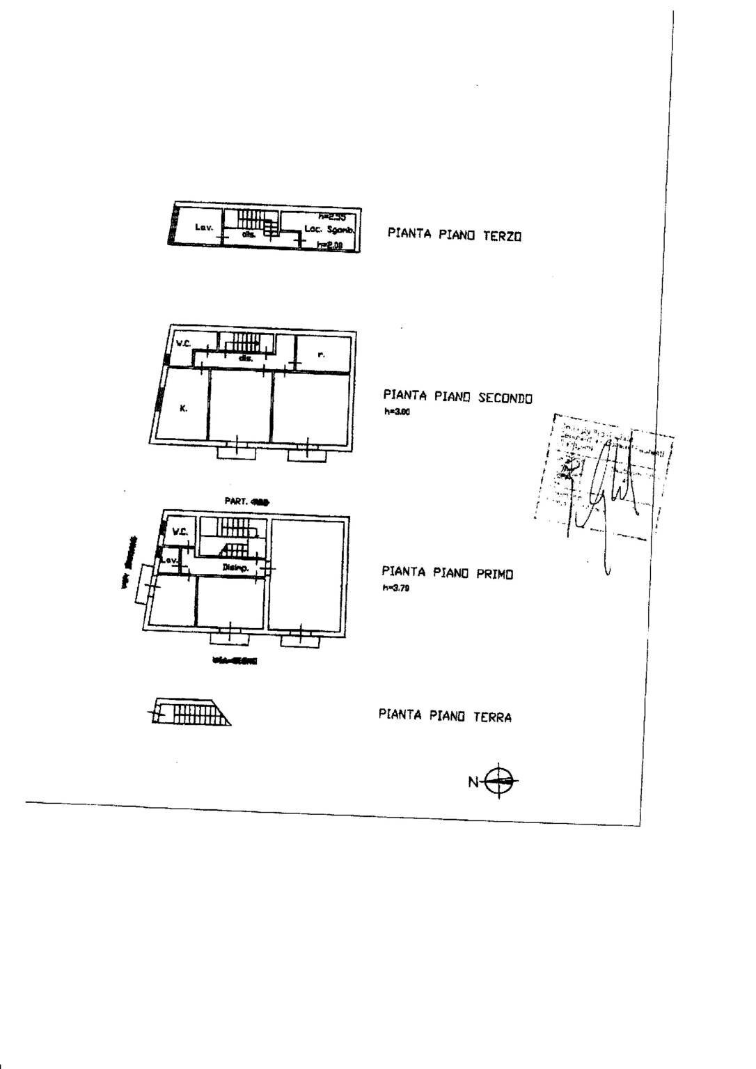
A pochi passi dalla zona pedonale del paese ma allo stesso tempo facile da parcheggiare e da raggiungere a piedi la movida cittadina, vi proponiamo un’ampia indipendente composta da due appartamenti indipendenti di cui uno al 1° piano l’altro al 2° piano di mq 70 ciascuno più un sottotetto al 3°piano di altri mq 20 circa dove c’è una camera e un bagno con vista mare favolosa con possibilità di creare piccolo terrazzino. Gli appartamenti sono composti da ingresso, cucina, salone due camere e bagno. La casa è tutta ristrutturata, anche il prospetto (cappotto) ha una cisterna per approvvigionamento idrico di 7000l,infissi esterni nuovi, doppia esposizione in quanto è ad angolo fra due strade. Per la sua posizione e superficie l’immobile si presta sia per uso investimento turistico, che per uso abitativo anche per due famiglie! A pochi passi dalla zona pedonale del paese ma allo stesso tempo facile da parcheggiare e da raggiungere a piedi la movida cittadina, vi proponiamo un’ampia indipendente composta da due appartamenti indipendenti di cui uno al 1° piano l’altro al 2° piano di mq 70 ciascuno più un sottotetto al 3°piano di altri mq 20 circa dove c’è una camera e un bagno con vista mare favolosa con possibilità di creare piccolo terrazzino. Gli appartamenti sono composti da ingresso, cucina, salone due camere e bagno. La casa è tutta ristrutturata, anche il prospetto (cappotto) ha una cisterna per approvvigionamento idrico di 7000l,infissi esterni nuovi, doppia esposizione in quanto è ad angolo fra due strade. Per la sua posizione e superficie l’immobile si presta sia per uso investimento turistico, che per uso abitativo anche per due famiglie! A pochi passi dalla zona pedonale del paese ma allo stesso tempo facile da parcheggiare e da raggiungere a piedi la movida cittadina, vi proponiamo un’ampia indipendente composta da due appartamenti indipendenti di cui uno al 1° piano l’altro al 2° piano di mq 70 ciascuno più un sottotetto al 3°piano di altri mq 20 circa dove c’è una camera e un bagno con vista mare favolosa con possibilità di creare piccolo terrazzino. Gli appartamenti sono composti da ingresso, cucina, salone due camere e bagno. La casa è tutta ristrutturata, anche il prospetto (cappotto) ha una cisterna per approvvigionamento idrico di 7000l,infissi esterni nuovi, doppia esposizione in quanto è ad angolo fra due strade. Per la sua posizione e superficie l’immobile si presta sia per uso investimento turistico, che per uso abitativo anche per due famiglie! A pochi passi dalla zona pedonale del paese ma allo stesso tempo facile da parcheggiare e da raggiungere a piedi la movida cittadina, vi proponiamo un’ampia indipendente composta da due appartamenti indipendenti di cui uno al 1° piano l’altro al 2° piano di mq 70 ciascuno più un sottotetto al 3°piano di altri mq 20 circa dove c’è una camera e un bagno con vista mare favolosa con possibilità di creare piccolo terrazzino. Gli appartamenti sono composti da ingresso, cucina, salone due c
Main data
| Reference | CM 1235 |
| Ad date | 06/07/2024 |
| Contract | Sale |
| Typology | Independent house |
| Surface | 160 m2 |
| Locals | more than 5 (4 bedrooms, 5 other), 3 bathrooms, kitchen habitable |
| Plan | 3 totals |
| Construction type | Average |
| Number of balconies | 1 |
| Number of parking spaces | 1 |
| Furniture | Absent |
Costs
| Price | 160.000 € |
| Price per m2 | 1.000 €/m2 |
Energy efficiency
| Year built | 1942 |
| Status | Excellent |
| Heating | Absent |
| Energy rating | C |
| Energy Performance Index (IPE) | 175 kWh/m2 year |
Floor plans
Address and map
via Abele Damiani, Castellammare del Golfo
Mortgage calculation
Selling price:
Advance
20,00
Mortgage
80,00
Rate: -+
Payment: 458 per month
The results are an indicative estimate based on the data entered and do not constitute a financial offer.
Advertiser

CASEMARIS Immobiliare
Via Nazario Sauro 7, Castellammare del Golfo
Show Phone
Show Mobile
Call
CONTACT

