Independent house Borgata Rossetto, Pinasca
€ 187.000Casa indipendente in vendita
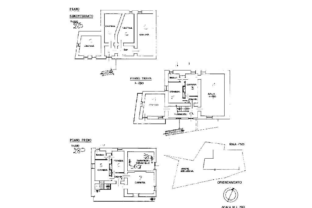
In borgata comoda e soleggiata, proponiamo casa semi-indipendente con sfogo esterno privato. La soluzione si presenta in ottime condizioni abitabili ed è disposta su due livelli. Il piano primo si sviluppa con l'ingresso sul disimpegno, tre camere da letto e bagno completo di vasca e finestra. Al piano terra, accessibile tramite scala esterna, troviamo un ampio salone con soffitto a volta e camino a legna, due camere da letto, disimpegno e bagno completo di vasca e finestra. Sul medesimo piano troviamo la cucina abitabile, caratterizzata da un camino in pietra e balcone che offre un'ottima vista sulle montagne. Al piano semi-interrato troviamo dei locali accessori e cantine con soffitto a volta in pietra. L'impianto di riscaldamento é alimentato da una caldaia autonoma a metano. Di pertinenza sono compresi un'ampia terrazza panoramica, una porzione di giardino, terreni adibiti ad uso frutteto di 2900 mq e cinque posti auto privati. Situato a pochi minuti dal centro del paese, l'immobile può essere destinato sia come prima o seconda casa, offrendo la perfetta combinazione di tranquillità e accessibilità.
Main data
| Reference | 60924178 |
| Ad date | 28/06/2024 |
| Contract | Sale |
| Typology | Independent house |
| Surface | 150 m2 |
| Locals | more than 5 (7 other), 2 bathrooms |
| Plan | 2 from 2 totals |
| Number of parking spaces | 5 |
Costs
| Price | 187.000 € |
| Price per m2 | 1.247 €/m2 |
Energy efficiency
| Year built | 1970 |
| Heating | Autonomous |
| Heating Power Type | Methane |
| Energy rating | G |
| Energy Performance Index (IPE) | - |
Floor plans
Video
Address and map
Borgata Rossetto, Pinasca
Mortgage calculation
Selling price:
Advance
20,00
Mortgage
80,00
Rate: -+
Payment: 535 per month
The results are an indicative estimate based on the data entered and do not constitute a financial offer.
Advertiser
Call
CONTACT

