Apartment Riccione
€ 548.000
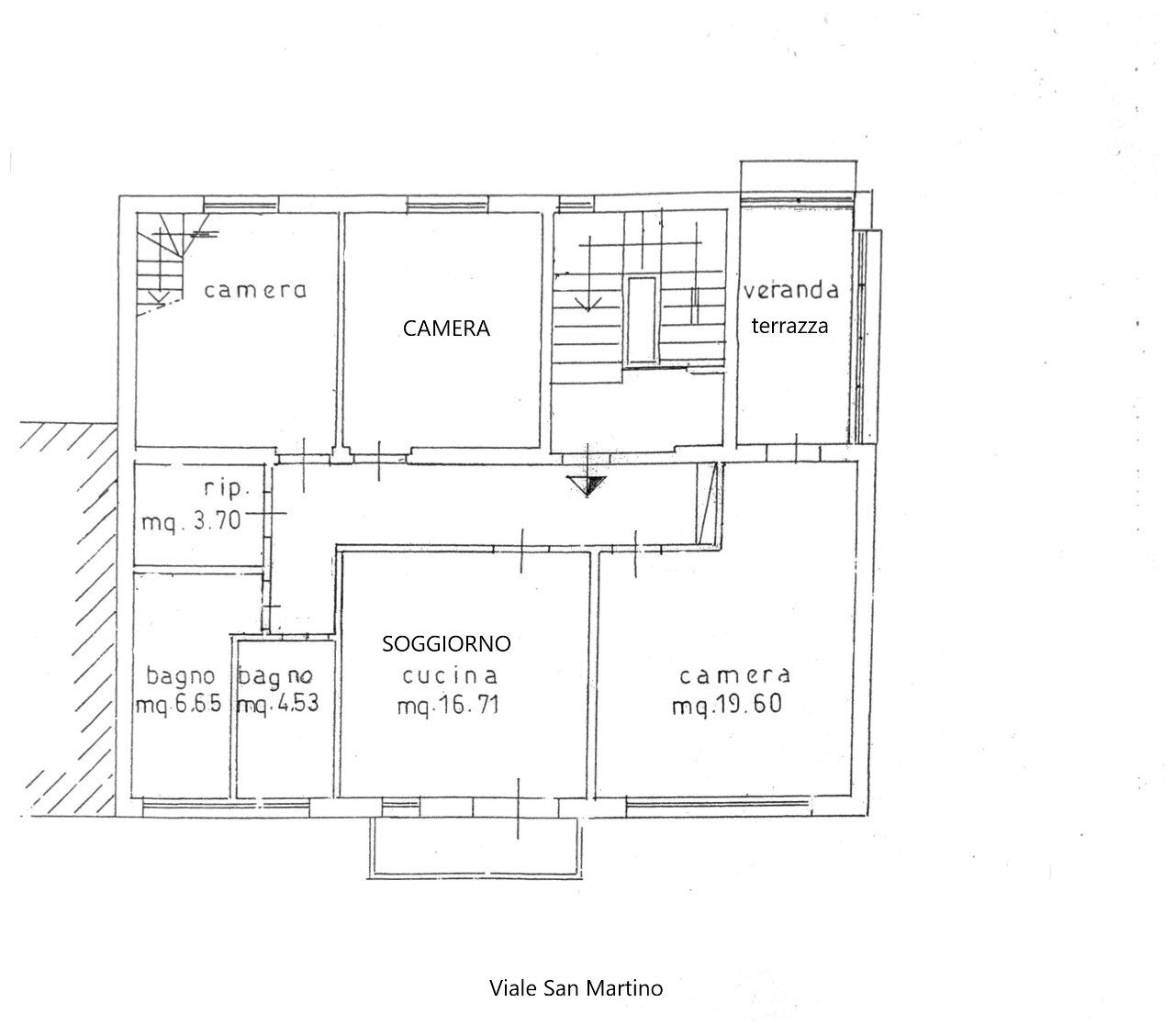
RICCIONE ABISSINIA VENDIAMO: VIALE SAN MARTINO - Appartamento indipendente a 100metri dal mare completamente rifatto 5 anni fa. Attraverso un portico privato si accede ad un primo ingresso con la comoda scala che ci porta al primo piano dove troviamo: cucina abitabile di 17mq con balcone, salotto di 20mq (o 3 camera) con terrazzino verandato, altre 2 camere da letto matrimoniali, 2 bagni finestrati ed un ripostiglio/lavanderia. La mansarda soprastante è utilizzabile per circa 15mq ed è rifinita come il resto della casa.Impianti di ultima generazione con riscaldamento a pavimento, aria condizionata, impianto di VMC (ventilazione meccanica controllata) tutti certificati.Prezzo Euro 548.000 rif. 02M014
Main data
| Reference | 02M014 |
| Ad date | 16/06/2024 |
| Contract | Sale |
| Typology | Apartment |
| Surface | 140 m2 |
| Locals | 3 bathrooms |
| Plan | 1 |
Costs
| Price | 548.000 € |
| Price per m2 | 3.914 €/m2 |
Energy efficiency
| Energy rating | Property exempt from energy certification |
Floor plans
Address and map
Riccione
Mortgage calculation
Selling price:
Advance
20,00
Mortgage
80,00
Rate: -+
Payment: 1.567 per month
The results are an indicative estimate based on the data entered and do not constitute a financial offer.
Advertiser
Call
CONTACT


