Shop largo Nicolò Rezzara, 7, Bergamo
€ 5.862 per monthNegozio fronte strada di 260mq+ interrato
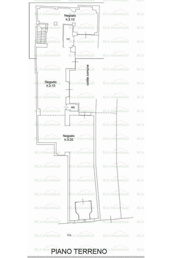
Negozio fronte strada di 260mq+ interrato 150 mq RGA Immobiliare negozio di 260Mq situato al piano terra . La soluzione è un open space ed è dotata di due servizi igienici, aria condizionata e riciclo d'aria. L'ambiente risulta particolarmente luminoso grazie alle grandi vetrine. Il locale possiede l'impianto di riscaldamento e condizionamento ad aria, l'impianto elettrico e quello di illuminazione. L'immobile è servito dal sistema di allarme, doppio ingresso ed è cablato. A garanzia è richiesta una fidejussione .
Main data
| Reference | ID2226864 |
| Ad date | 14/06/2024 |
| Contract | Rent |
| Typology | Shop |
| Surface | 275 m2 |
| Plan | 1 totals |
| Real estate use | Commercial |
Costs
| Price | 5.862 € per month |
Energy efficiency
| Heating | Autonomous |
| Energy rating | C |
| Energy Performance Index (IPE) | 16 kWh/m2 year |
Floor plans
Address and map
largo Nicolò Rezzara, 7, Bergamo
Advertiser
Call
CONTACT


