Semi-detached house Località carrara, Terzo
€ 190.000Casa semindipendente in vendita
Proponiamo in vendita casa semindipendente a pochi minuti di macchina da Acqui Terme.
La casa è stata costruita nel 1992 ed è circondata dal giardino privato; separato dal viale troviamo l'ampio garage con bagno e cantina e un secondo giardino con pozzo.
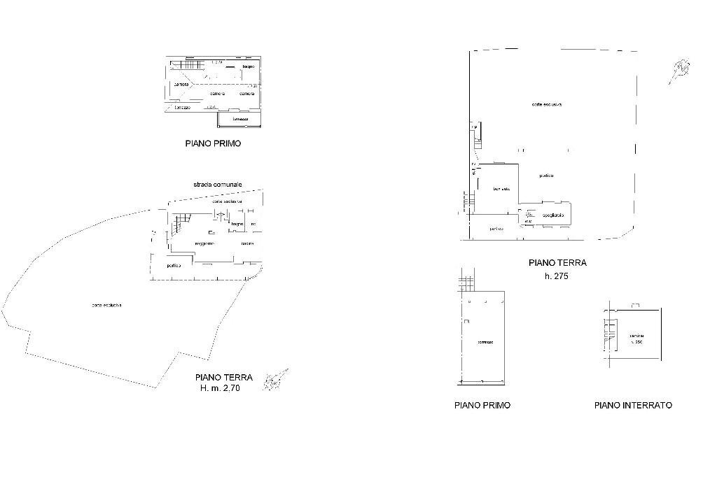
La casa si sviluppa su due piani, dove al piano terra troviamo l'ampia zona giorno con camino e cucina in muratura, bagno con doccia e locale caldaia / lavanderia. Salendo la scala arriviamo al piano superiore dove troviamo tre camere da letto spaziose con pavimento in legno di larice e ognuna con affaccio sui terrazzi coperti. Bagno con vasca e doccia.
La casa è stata costruita nel 1992 ed è circondata dal giardino privato; separato dal viale troviamo l'ampio garage con bagno e cantina e un secondo giardino con pozzo.
La casa si sviluppa su due piani, dove al piano terra troviamo l'ampia zona giorno con camino e cucina in muratura, bagno con doccia e locale caldaia / lavanderia. Salendo la scala arriviamo al piano superiore dove troviamo tre camere da letto spaziose con pavimento in legno di larice e ognuna con affaccio sui terrazzi coperti. Bagno con vasca e doccia.
Main data
| Reference | 60916598 |
| Ad date | 09/06/2024 |
| Contract | Sale |
| Typology | Semi-detached house |
| Surface | 175 m2 |
| Locals | 5 (3 bedrooms, 2 other), 3 bathrooms |
| Plan | 2 totals |
| Number of parking spaces | 1 |
Costs
| Price | 190.000 € |
| Price per m2 | 1.086 €/m2 |
Energy efficiency
| Year built | 1992 |
| Heating | Autonomous |
| Heating Power Type | Methane |
| Energy rating | E |
| Energy performance index (EP GL, REN ) | 0.49 kWh/m3 year |
| Energy performance index (EP GL, NREN ) | 237.22 kWh/m3 year |
Floor plans
Address and map
Località carrara, Terzo
Mortgage calculation
Selling price:
Advance
20,00
Mortgage
80,00
Rate: -+
Payment: 543 per month
The results are an indicative estimate based on the data entered and do not constitute a financial offer.
Advertiser
Call
CONTACT

