Shop via Sempione, Castelletto Sopra Ticino
€ 280.800Locale commerciale - Castelletto Sopra Ticino
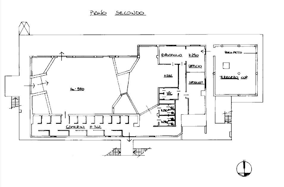
Proponiamo in vendita ampio locale commerciale situato al secondo piano, ideale per diverse attività grazie ai suoi spazi funzionali e alla posizione strategica. L'immobile è composto da un ampio salone, camerini, bagni, ripostiglio, ufficio, spogliatoio e un terrazzo coperto, la struttura è circondata da una spaziosa balconata che offre luminosità naturale. L'accesso all'unità immobiliare è agevolato da un ascensore e da tre vani scala posizionati sui lati nord, est e ovest. La solidità del fabbricato è garantita da una struttura portante in cemento armato con tamponamenti esterni in muratura e una copertura con travi in legno. I serramenti esterni, che sono in alluminio con vetro doppio, assicurano isolamento termico e acustico; i pavimenti sono in gres in tutti gli ambienti e i rivestimenti dei bagni sono in ceramica. Ampio parcheggio libero a disposizione. La posizione centrale tra le vie Sempione e del Lago rende questo locale facilmente raggiungibile e altamente visibile, a soli 3 km dalla stazione ferroviaria di Sesto Calende e 18 km dall'aeroporto di Milano Malpensa mentre il centro di Castelletto Sopra Ticino dista 4 km. La posizione è strategica, adiacente alla SS33 del Sempione, un'importante arteria di collegamento tra Milano e la Svizzera, e a 3 km dal casello autostradale dell'A8/A26. La zona è ben servita dai trasporti pubblici extraurbani, con la fermata più vicina (Castelletto, Sempione fr. 163, Cicognola) situata a soli 210 metri.
Main data
| Reference | 003A |
| Ad date | 26/05/2024 |
| Contract | Sale |
| Typology | Shop |
| Surface | 521 m2 |
| Plan | 1 totals |
| Real estate use | Commercial |
Costs
| Price | 280.800 € |
| Price per m2 | 539 €/m2 |
Energy efficiency
| Energy rating | Property exempt from energy certification |
Floor plans
Address and map
via Sempione, Castelletto Sopra Ticino
Mortgage calculation
Selling price:
Advance
20,00
Mortgage
80,00
Rate: -+
Payment: 803 per month
The results are an indicative estimate based on the data entered and do not constitute a financial offer.
Advertiser

Idealcasa
via V.Emanuele II 82, Borgo Ticino
Show Phone
Call
CONTACT

