Apartment Reggio nell'Emilia
€ 169.000
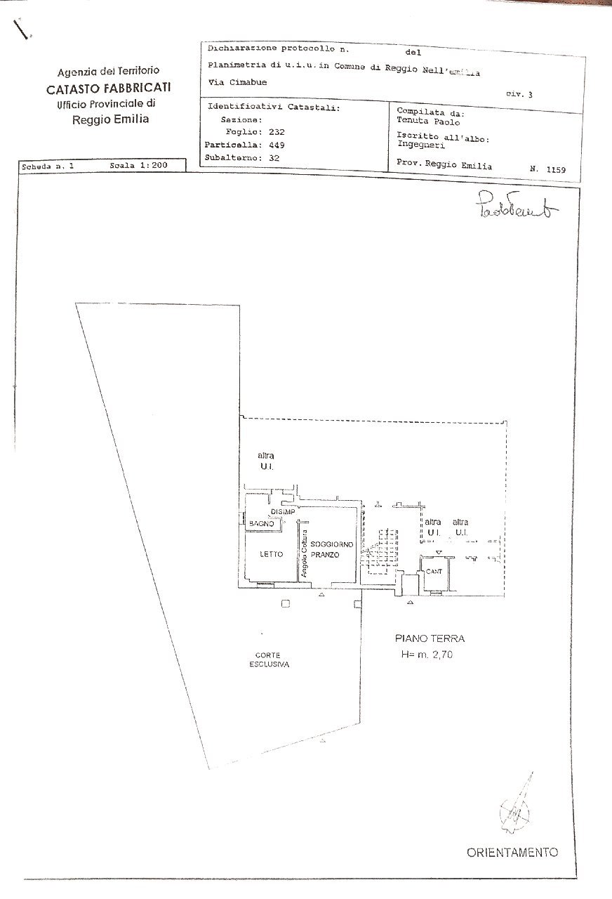
SAN RIGO: in recente contesto residenziale, appartamento con ingresso indipendente composto da soggiorno con cucina a vista, disimpegno notte, 2 camere matrimoniali e bagno con doccia. Di pertinenza anche cantina e posto auto privato. Ampio giardino privato di circa 200 mq. Alta efficienza energetica con riscaldamento a pavimento e climatizzatore.
Main data
| Reference | DMA034 |
| Ad date | 16/05/2024 |
| Contract | Sale |
| Typology | Apartment |
| Surface | 74 m2 |
| Locals | 1 bathroom |
Costs
| Price | 169.000 € |
| Price per m2 | 2.284 €/m2 |
| Condominium fees | €100,00/month |
Energy efficiency
| Energy rating | A |
| Energy Performance Index (IPE) | - |
Floor plans
Address and map
Reggio nell'Emilia
Mortgage calculation
Selling price:
Advance
20,00
Mortgage
80,00
Rate: -+
Payment: 483 per month
The results are an indicative estimate based on the data entered and do not constitute a financial offer.
Advertiser
Call
CONTACT


