Office via Europa, Pogliano Milanese
€ 9.500 per monthPALAZZINA CIELO TERRA DI 1000 MQ - COMPLETAMENTE RISTRUTTURA
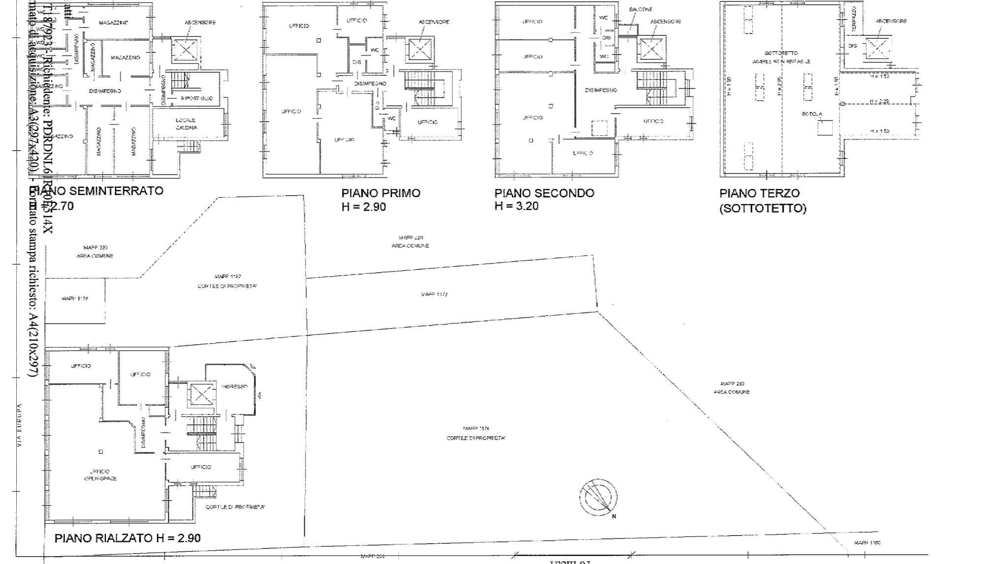
(PALAZZINA CIELO TERRA DI 1000 MQ - COMPLETAMENTE RISTRUTTURATA - CORTILE PRIVATO) La palazzina si trova nella zona industriale di Pogliano Milanese (MI), a poche centinaia di metri dalla Strada Statale del Sempione e a pochi minuti dall'accesso della tangenziale ovest e dal casello dell'autostrada A8. Si sviluppa su 5 livelli per totali 1000 mq, i piani sono serviti da ascensore e provvisti di tutta l'impiantistica necessaria. L'immobile è stato recentemente ristrutturato e si trova pronto per l'utilizzo. Gli uffici si presentano sia in configurazione open-space sia in configurazione frazionata con pareti fisse e/o mobili anche vetrate, diversi locali sono già stati adibiti e attrezzati per sale riunioni e sale meeting. Completa la proprietà il cortile privato e recintato ideale come area parcheggio. SCOPRI ALTRE SOLUZIONI SUL NOSTRO SITO WWW.CASAEINDUSTRIA.IT I nostri servizi: - Intermediazione immobiliare; - valutazioni per la locazione e la vendita di immobili; - stesura e registrazione contratti; - certificazioni energetiche; - finanziamenti su misura; - progettazione di edifici civili ed industriali; - calcoli strutture in cemento armato, legno e acciaio; - perizie, collaudi, asseverazioni statiche; - direzione lavori; - supervisione in cantiere nella fase di realizzazione; - assistenza alle imprese (tracciamenti planimetrici ed altimetrici, contabilità di cantiere); - computi metrici; - verifica dispersioni termiche degli edifici (L 10/91); - progetto impianti; - operazioni topografiche di rilevamento completo; - operazioni catastali (tipi di frazionamento, tipi mappali, denunce di nuova costruzione e variazione con acquisizione della rendita catastale, volture).
Main data
| Reference | ID2034309 |
| Ad date | 10/02/2024 |
| Contract | Rent |
| Typology | Office |
| Surface | 1000 m2 |
| Construction type | Signorile |
| Real estate use | Commercial |
Costs
| Price | 9.500 € per month |
Energy efficiency
| Heating | Autonomous |
| Energy rating | C |
| Energy Performance Index (IPE) | 21.71 kWh/m2 year |
Floor plans
Address and map
via Europa, Pogliano Milanese
Advertiser
Call
CONTACT


