Terraced Villa Cervia
€ 449.000
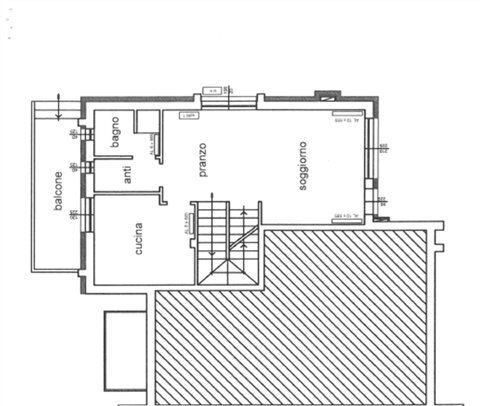
Proponiamo in vendita a Cervia, villetta a schiera di ampie metrature con ingresso indipendente, giardino privato e garage.L’immobile si compone di ampio soggiorno, cucina abitabile con accesso diretto dalla corte, e bagno finestrato con box doccia al piano terra.Proseguendo verso la zona notte, tramite le scale, troviamo le tre camere da letto, di cui una matrimoniale, tutte servite da balconi e il bagno finestrato con vasca.Al piano seminterrato troviamo una taverna confortevole dotata di camino e il garage.Completa l’offerta, la corte privata che circonda l’immobile su tre lati e il sottotetto non abitabile ideale come uso ripostiglio.La casa è adiacente a tutti i servizi e al centro di Cervia.Possibilità di parcheggiare l’auto all’interno della corte privata. RIF.805
Main data
| Reference | BRB805 |
| Ad date | 18/01/2024 |
| Contract | Sale |
| Typology | Terraced Villa |
| Surface | 145 m2 |
| Locals | 2 bathrooms |
Costs
| Price | 449.000 € |
| Price per m2 | 3.097 €/m2 |
Energy efficiency
| Energy rating | G |
Floor plans
Address and map
Cervia
Mortgage calculation
Selling price:
Advance
20,00
Mortgage
80,00
Rate: -+
Payment: 1.284 per month
The results are an indicative estimate based on the data entered and do not constitute a financial offer.
Advertiser
Call
CONTACT

