Rustic Ozzano dell'Emilia
€ 250.000RUSTICO CON SERVIZI E CORTE PRIVATA
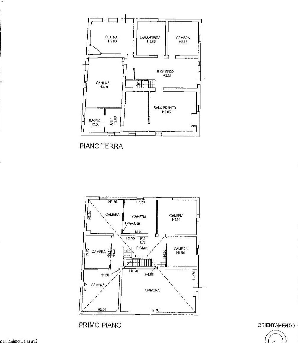
OZZANO DELL'EMILIA: rustico da ristrutturare vicino alla frazione di "Ponte Rizzoli" comodo alle vie principali in quanto a pochi metri dalla via Stradelli Guelfi con ampia corte privata di circa 8.500 mq. composto da abitazione principale di circa 410 mq. da due capannoni agricoli indipendenti con corte e servizi accessori. Libero da subito. Rif 109
Main data
| Reference | 109 |
| Ad date | 04/01/2024 |
| Contract | Sale |
| Typology | Rustic |
| Surface | 917 m2 |
| Locals | more than 5 (8 bedrooms, 3 other), 1 bathroom, kitchen habitable |
| Plan | 1 (Earth) from 1 totals |
| Construction type | Average |
| Occupied | Free |
| Box number | 2 |
| Garage | Double |
| Number of parking spaces | 10 |
| Furniture | Absent |
Costs
| Price | 250.000 € |
| Price per m2 | 273 €/m2 |
Energy efficiency
| Year built | 1930 |
| Status | To be restored |
| Heating | Absent |
| External frames | Glass / Wood |
| Energy rating | In the calculation phase |
Floor plans
Address and map
Ozzano dell'Emilia
Ad without map,
try asking the advertiser for the position
try asking the advertiser for the position
Mortgage calculation
Selling price:
Advance
20,00
Mortgage
80,00
Rate: -+
Payment: 715 per month
The results are an indicative estimate based on the data entered and do not constitute a financial offer.
Advertiser

Agenzia Immobiliare Calamosca
Via Paolo Galeati 27, Imola
Show Phone
Show Mobile
Call
CONTACT

