Commercial Premises C.da Capo Di Gallo, Martina Franca
€ 530.000Rif. 1726 Masseria in Vendita a Martina Franca
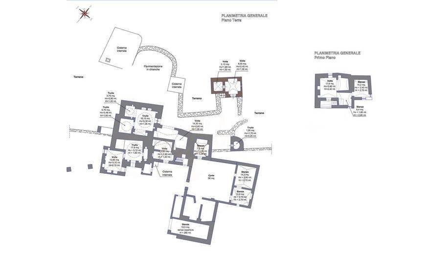
Rif. 1728 #MyProjectCasa propone in vendita tipica masseria pugliese nel territorio della Valle d'Itria. È ubicata nei pressi del bosco Selva di Alberobello dove potrete camminare tra i suoi trulli. Da strada non asfaltata si giunge alla proprietà composta da un casale, trulli con alcove, cummersa, cisterne, depositi e piazzale circostante in chianche in pietra locale (aia). La proprietà si completa con circa 2,2 ettari di terreno. PER IMMOBILI SIMILI VISITA myprojectcasa.it
Main data
| Reference | 1726 |
| Ad date | 09/11/2023 |
| Contract | Sale |
| Typology | Commercial Premises |
| Surface | 450 m2 |
| Locals | more than 5 (10 bedrooms), 2 bathrooms |
Costs
| Price | 530.000 € |
| Price per m2 | 1.178 €/m2 |
Energy efficiency
| Heating | Absent |
| Energy rating | G |
| Energy Performance Index (IPE) | 175 kWh/m2 year |
Floor plans
Address and map
C.da Capo Di Gallo, Martina Franca
Ad without map,
try asking the advertiser for the position
try asking the advertiser for the position
Mortgage calculation
Selling price:
Advance
20,00
Mortgage
80,00
Rate: -+
Payment: 1.516 per month
The results are an indicative estimate based on the data entered and do not constitute a financial offer.
Advertiser
Call
CONTACT


