Portion of a house Via Francesco Cogo, Volpedo
€ 190.000Porzione di bifamiliare in vendita
La casa è in posizione tranquilla e a soli 15 min da Tortona. La villa, vanta generose metrature e ha ingresso indipendente tramite il giardino privato.
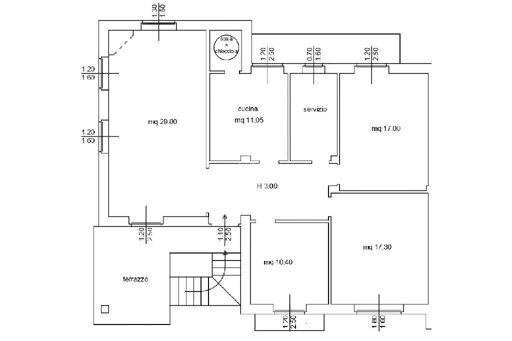
Il piano terra è suddiviso dal un primo salone, ulteriori due locali, bagno, oltre al box auto singolo e locale caldaia/lavanderia. Tramite la scala sia interna che esterna si può comodamente accedere al piano primo con l'ampio salone di circa 30mq completo di terrazza e la cucina abitabile con balcone. La zona notte si compone di due camere da letto matrimoniali, una camera singola con balcone e il bagno rifatto. Inoltre c'è la cantina al piano seminterrato.
Il piano terra è suddiviso dal un primo salone, ulteriori due locali, bagno, oltre al box auto singolo e locale caldaia/lavanderia. Tramite la scala sia interna che esterna si può comodamente accedere al piano primo con l'ampio salone di circa 30mq completo di terrazza e la cucina abitabile con balcone. La zona notte si compone di due camere da letto matrimoniali, una camera singola con balcone e il bagno rifatto. Inoltre c'è la cantina al piano seminterrato.
Main data
| Reference | 60783011 |
| Ad date | 28/07/2023 |
| Contract | Sale |
| Typology | Portion of a house |
| Surface | 180 m2 |
| Locals | more than 5 (3 bedrooms, 5 other), 2 bathrooms |
| Plan | 2 from 2 totals |
Costs
| Price | 190.000 € |
| Price per m2 | 1.056 €/m2 |
Energy efficiency
| Year built | 1970 |
| Heating | Autonomous |
| Heating Power Type | Methane |
| Energy rating | E |
| Energy performance index (EP GL, REN ) | 0.49 kWh/m3 year |
| Energy performance index (EP GL, NREN ) | 225.08 kWh/m3 year |
Floor plans
Address and map
Via Francesco Cogo, Volpedo
Mortgage calculation
Selling price:
Advance
20,00
Mortgage
80,00
Rate: -+
Payment: 543 per month
The results are an indicative estimate based on the data entered and do not constitute a financial offer.
Advertiser
Call
CONTACT

