Portion of a house Via della fornace, Valsamoggia
€ 347.000Porzione di trifamiliare in vendita
Nella frazione della Bersagliera proponiamo villetta trifamiliare con ingressi indipendenti.
Contesto panoramico e tranquillo, ma comodo alla viabilità principale.
Soluzione ottimizzata secondo le più recenti normative edilizie in merito all'antisismica, riscaldamento in pompa di calore senza allaccio alla rete metano, infissi con triplo vetro, impianoto fotovoltaico.
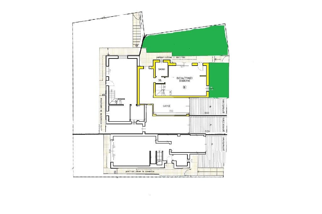
SOLUZIONE B: ingresso indipendente su giardino di proprietà in parte pavimentato di 86mq, soggiorno con cucina a vista, ripostiglio, bagno ed accesso interno all'autorimessa; tramite scala interna si raggiunge il primo piano con le tre camere da letto (una matrimoniale e due singole), bagno.
Fissa un appuntamento. Chiama in ufficio 051.830466 oppure via mail bo2c4
Contesto panoramico e tranquillo, ma comodo alla viabilità principale.
Soluzione ottimizzata secondo le più recenti normative edilizie in merito all'antisismica, riscaldamento in pompa di calore senza allaccio alla rete metano, infissi con triplo vetro, impianoto fotovoltaico.
SOLUZIONE B: ingresso indipendente su giardino di proprietà in parte pavimentato di 86mq, soggiorno con cucina a vista, ripostiglio, bagno ed accesso interno all'autorimessa; tramite scala interna si raggiunge il primo piano con le tre camere da letto (una matrimoniale e due singole), bagno.
Fissa un appuntamento. Chiama in ufficio 051.830466 oppure via mail bo2c4
Main data
| Reference | 60545882 |
| Ad date | 22/03/2023 |
| Contract | Sale |
| Typology | Portion of a house |
| Surface | 157 m2 |
| Locals | 4 (4 other), 2 bathrooms |
| Plan | 2 totals |
Costs
| Price | 347.000 € |
| Price per m2 | 2.210 €/m2 |
Energy efficiency
| Year built | 2025 |
| Heating | Autonomous |
| Heating Power Type | Other |
| Energy rating | A4 |
| Energy performance index (EP GL, REN ) | 0.4 kWh/m3 year |
| Energy performance index (EP GL, NREN ) | 0.4 kWh/m3 year |
Floor plans
Video
Address and map
Via della fornace, Valsamoggia
Mortgage calculation
Selling price:
Advance
20,00
Mortgage
80,00
Rate: -+
Payment: 992 per month
The results are an indicative estimate based on the data entered and do not constitute a financial offer.
Advertiser
Call
CONTACT

