Apartment Via Mazzini, Acqui Terme
€ 290.0005 locali in vendita
Ad Acqui Terme, a 60 km dal mare, a poco più di un'ora e mezza di macchina da Milano, Genova e Torino, gli alloggi, con finiture di pregio, si trovano al centro della città termale.
Il palazzo è stato restaurato recentemente sia nelle parti esterne, che nelle parti comuni.
Le scale sono state completamente rivestite in pietra matraia, adornate con le ringhiere in ghisa, prodotte artigianalmente dalle Fonderie Artistiche di Brescia.
Le parti comuni sono arredate con specchi antichi e lampadari d'ottone rivestiti in oro zecchino.
Le pareti sono decorate a mano, in linea con l'epoca del palazzo ed i suoi ambienti.
Le porte caposcala in castagno scolpite a mano.
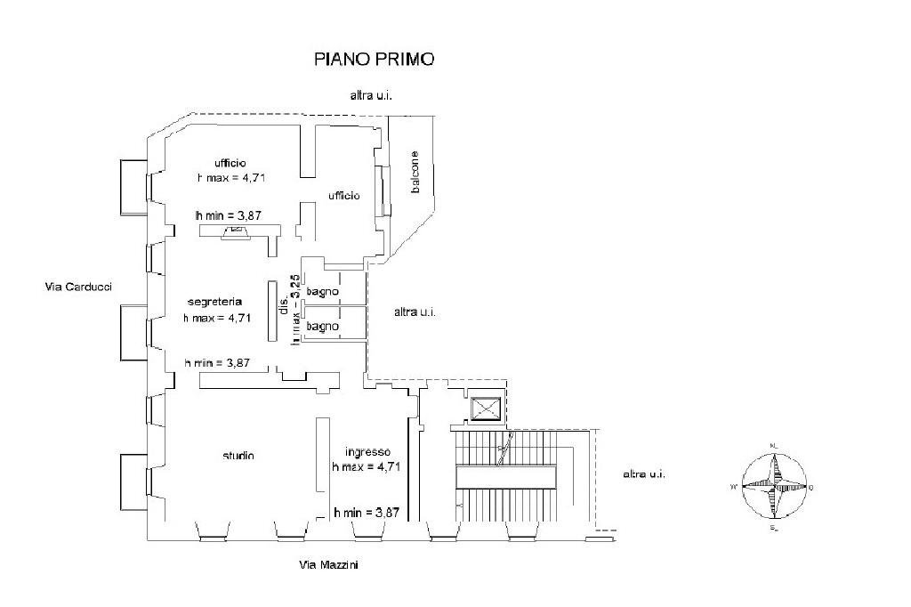
L'appartamento proposto al primo piano è di circa 212 metri quadrati, ed era il piano nobile della palazzina. Gli affreschi, di un famoso artista dell'epoca, Ivaldi Pietro, detto 'Il Muto', totalmente restaurati di recente.
Attualmente è adibito ad ufficio, ma è possibile riconvertirlo in abitazione, con tutte le predisposizioni impiantistiche.
Le cantine sono state restaurate completamente, mantenendo i crismi dell'epoca, soprattutto le porte in legno di castagno, di produzione artigianale.
Il palazzo è stato restaurato recentemente sia nelle parti esterne, che nelle parti comuni.
Le scale sono state completamente rivestite in pietra matraia, adornate con le ringhiere in ghisa, prodotte artigianalmente dalle Fonderie Artistiche di Brescia.
Le parti comuni sono arredate con specchi antichi e lampadari d'ottone rivestiti in oro zecchino.
Le pareti sono decorate a mano, in linea con l'epoca del palazzo ed i suoi ambienti.
Le porte caposcala in castagno scolpite a mano.
L'appartamento proposto al primo piano è di circa 212 metri quadrati, ed era il piano nobile della palazzina. Gli affreschi, di un famoso artista dell'epoca, Ivaldi Pietro, detto 'Il Muto', totalmente restaurati di recente.
Attualmente è adibito ad ufficio, ma è possibile riconvertirlo in abitazione, con tutte le predisposizioni impiantistiche.
Le cantine sono state restaurate completamente, mantenendo i crismi dell'epoca, soprattutto le porte in legno di castagno, di produzione artigianale.
Main data
| Reference | 60539861 |
| Ad date | 22/03/2023 |
| Contract | Sale |
| Typology | Apartment |
| Surface | 212 m2 |
| Locals | 5 (5 other), 2 bathrooms |
Costs
| Price | 290.000 € |
| Price per m2 | 1.368 €/m2 |
Energy efficiency
| Year built | 1900 |
| Heating | Autonomous |
| Heating Power Type | Methane |
| Energy rating | E |
| Energy performance index (EP GL, NREN ) | 214.48 kWh/m3 year |
Floor plans
Video
Address and map
Via Mazzini, Acqui Terme
Mortgage calculation
Selling price:
Advance
20,00
Mortgage
80,00
Rate: -+
Payment: 829 per month
The results are an indicative estimate based on the data entered and do not constitute a financial offer.
Advertiser
Call
CONTACT

