Independent house via Niccolò Machiavelli, Salve
€ 98.000Indipendente Volte a Stella da ultimare
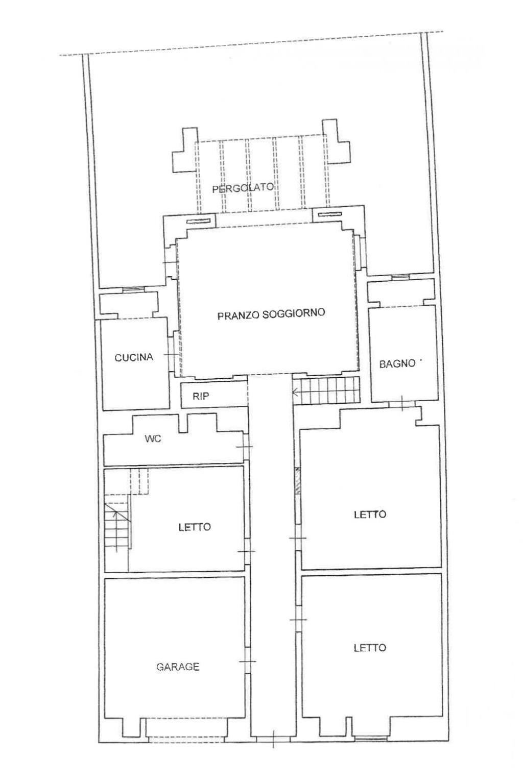
SALVE - Situata in una zona semi-centrale, comodamente vicina a tutti i servizi e a pochi passi dalla piazza principale, questa affascinante abitazione indipendente presenta caratteristiche volte a stella allo stato grezzo. Distribuita su un unico livello di circa 180 metri quadrati, offre un ambiente spazioso e luminoso. Si compone di un ampio corridoio centrale con volta a botte, che separa 4 vani, di cui uno ammezzato, tutti caratterizzati da suggestive volte a stella. Il corridoio conduce ad un ampio e luminoso vano, anch'esso con volta a botte, adibito a patio coperto, con affaccio sul giardino retrostante di circa 130 metri quadrati. La proprietà dispone inoltre di doppi servizi, due ripostigli e una cantina al piano sottoposto, accessibile tramite scala interna. Si tratta di una soluzione da ultimare, ideale per chi desidera personalizzare e completare l'abitazione secondo i propri gusti. Ottimo investimento!
Main data
| Reference | B279 |
| Ad date | 27/10/2019 |
| Contract | Sale |
| Typology | Independent house |
| Surface | 180 m2 |
| Locals | more than 5 (2 bedrooms, 5 other), 2 bathrooms, kitchen habitable |
| Plan | 1 totals |
| Construction type | Average |
| Number of terraces | 1 |
| Garage | Single |
| Furniture | Absent |
Costs
| Price | 98.000 € |
| Price per m2 | 544 €/m2 |
Energy efficiency
| Year built | 2010 |
| Status | To be restored |
| Heating | Absent |
| Energy rating | G |
| Energy Performance Index (IPE) | 175 kWh/m2 year |
Floor plans
Address and map
via Niccolò Machiavelli, Salve
Mortgage calculation
Selling price:
Advance
20,00
Mortgage
80,00
Rate: -+
Payment: 280 per month
The results are an indicative estimate based on the data entered and do not constitute a financial offer.
Advertiser
Call
CONTACT


