Four-room apartment via Piandifieno, 55, Ne
€ 89.000Piandifieno - Appartamento di ampia metratura
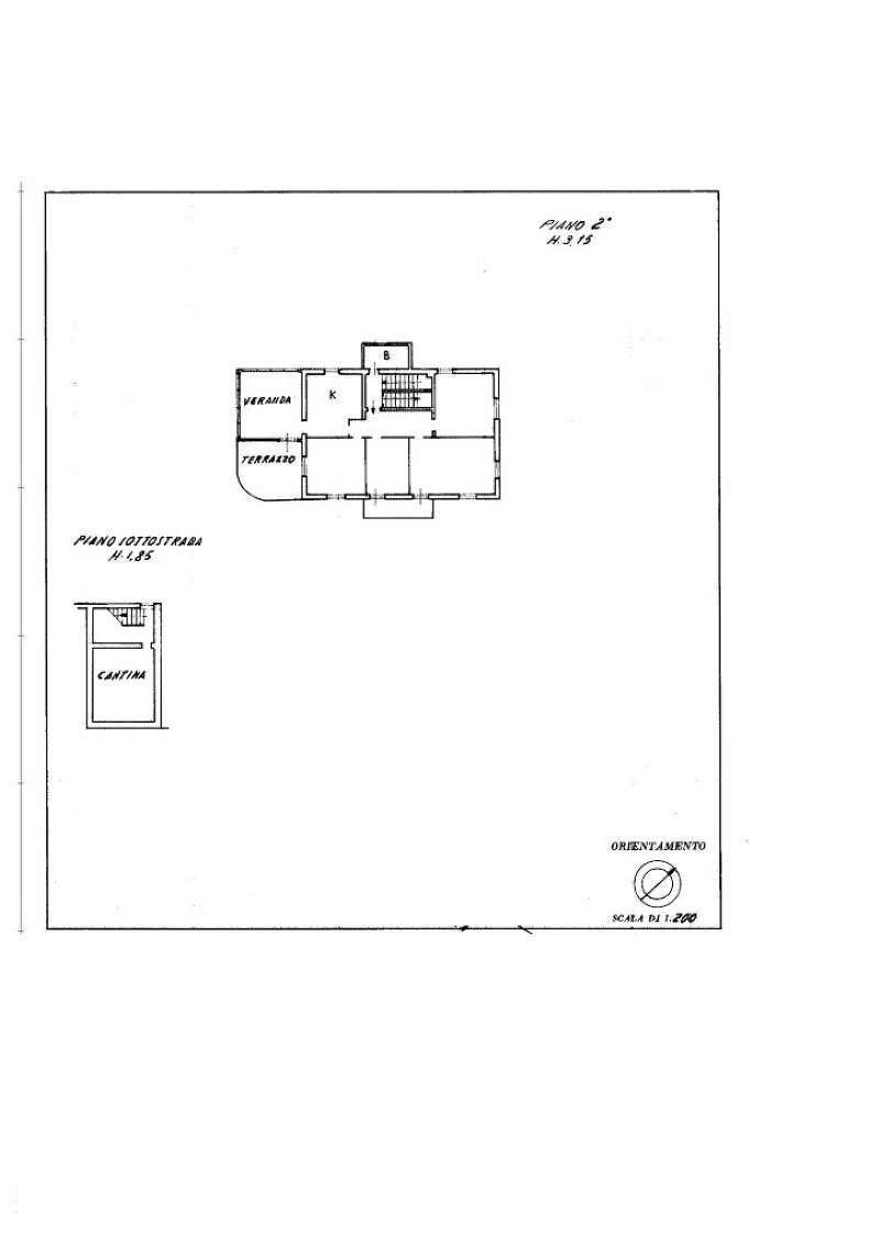
Nel comune di Ne, località Piandifieno, in posizione residenziale e poco distante da tutti i servizi, l'immobiliare Progetto31 propone in esclusiva di vendita appartamento di ampia metratura ubicato in palazzotto di sole due unità abitative. L'immobile è posto all'ultimo piano della palazzina e internamente si presenta da rimodernare; allo stato attuale la distribuzione interna è la seguente: Ingresso, cucina abitabile con uscita su terrazzo abitabile di circa 45 mq in parte verandato, ampio salotto, tre camere da letto matrimoniali, bagno finestrato e balcone. Tramite porta interna si accede a utilissimo vano sottotetto. Completa la proprietà una cantina pertinenziale posta al piano terra. Ampie possibilità di redistribuzione interna, soluzione ideale come prima casa.
Main data
| Reference | Piandifieno |
| Ad date | 02/03/2023 |
| Contract | Sale |
| Typology | Apartment |
| Surface | 161 m2 |
| Locals | 4 (3 bedrooms, 1 other), 1 bathroom, kitchen habitable |
| Plan | 2 from 2 totals |
| Construction type | Popular |
| Number of terraces | 1 |
| Number of balconies | 1 |
| Garage | Absent |
| Furniture | Absent |
Costs
| Price | 89.000 € |
| Price per m2 | 553 €/m2 |
| Condominium fees | €1,00/month |
Energy efficiency
| Year built | 1960 |
| Status | To be restored |
| Heating | Autonomous |
| Heating Power Type | Methane |
| Energy rating | G |
| Energy Performance Index (IPE) | 358.01 kWh/m2 year |
Floor plans
Address and map
via Piandifieno, 55, Ne
Mortgage calculation
Selling price:
Advance
20,00
Mortgage
80,00
Rate: -+
Payment: 255 per month
The results are an indicative estimate based on the data entered and do not constitute a financial offer.
Advertiser
Call
CONTACT


