Office Roma
€ 2.200.000
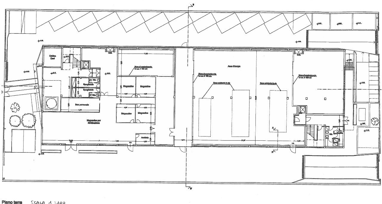
Palazzina Uffici in vendita- Roma Tiburtina: Nelle immediate vicinanze della fermata della metro B Rebibbia, in zona artigianale ben collegata anche dalla statale, proponiamo in vendita una palazzina completamente ristrutturata nel 2008. L’immobile si presenta in ottimo stato di manutenzione con finiture di livello, risulta tutta cablata, dotata di: video sorveglianza - impianto di allarme - impianto antincendio. Tutti gli impianti sono a norma e certificati. L’immobile è disposto su tre livelli per un totale di mq 4083 collegati da due corpi scale e due ascensori, oltre alla corte esterna di 1800 mq con circa 2o posti auto e vari posti moto, è dotata di 4 accessi carrai e uno pedonale. C.E G euro 2.200.000,00
Main data
| Reference | 02M057 |
| Ad date | 28/02/2023 |
| Contract | Sale |
| Typology | Office |
| Surface | 4137 m2 |
Costs
| Price | 2.200.000 € |
| Price per m2 | 532 €/m2 |
Energy efficiency
| Energy rating | G |
Floor plans
Address and map
Roma
Mortgage calculation
Selling price:
Advance
20,00
Mortgage
80,00
Rate: -+
Payment: 6.292 per month
The results are an indicative estimate based on the data entered and do not constitute a financial offer.
Advertiser
Call
CONTACT


