Villa via Lorenzo de' Medici, Forte dei Marmi
€ 1.300.000A 250 METRI DAL MARE - PRONTA DA VIVERE
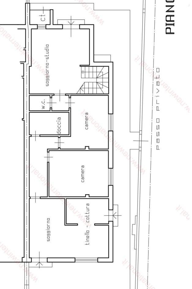
Bellissima villetta bifamiliare, sita a 250 metri dal mare nel centro di Vittoria Apuana. Allo stato attuale l'immobile è, di fatto, suddivisa in due parti distinte; si può facilmente ricondurre a unica abitazione. Corte esterna di proprietà dotata di accesso carrabile e posto auto. Al suo interno è così composta: Parte a) Salottino/tinello, cucinotto, bagno, camera matrimoniale e camera singola. Tutta al piano terra con spazio esterno dove mangiare. Parte b) Piano terra: cucina/tinello, bagno, spazio esterno dove mangiare e posto auto. Piano primo: camera matrimoniale con bagno privato, camera matrimoniale con ampia terrazza, camera doppia, secondo bagno al piano. Visionabile senza impegno su appuntamento, festivi compresi. L'indirizzo dell'immobile e la posizione sulla mappa sono un ausilio nell'individuazione della zona, pur rispettando la privacy dei venditori. Contattateci per maggiori informazioni su questo ed altri immobili a Forte dei Marmi, Cinquale, Pietrasanta e in tutta la Versilia. L’esperienza della nostra agenzia è maturata nel corso di 35 anni di attività nella stessa zona: una garanzia di serietà ed affidabilità, oltre che di un’ottima conoscenza del mercato.
Main data
| Reference | 1239 |
| Ad date | 06/02/2023 |
| Contract | Sale |
| Typology | Villa |
| Surface | 171 m2 |
| Locals | more than 5 (5 bedrooms, 2 other), 4 bathrooms, kitchen small kitchen |
| Plan | 2 totals |
| Construction type | Signorile |
| Number of terraces | 1 |
| Garage | Absent |
| Number of parking spaces | 1 |
| Furniture | Partial |
Costs
| Price | 1.300.000 € |
| Price per m2 | 7.602 €/m2 |
Energy efficiency
| Year built | 2009 |
| Status | Excellent |
| Heating | Autonomous |
| Energy rating | C |
| Energy Performance Index (IPE) | 69.96 kWh/m2 year |
Floor plans
Address and map
via Lorenzo de' Medici, Forte dei Marmi
Mortgage calculation
Selling price:
Advance
20,00
Mortgage
80,00
Rate: -+
Payment: 3.718 per month
The results are an indicative estimate based on the data entered and do not constitute a financial offer.
Advertiser
Call
CONTACT


