Two-room apartment Frazione Moulins, Aymavilles
€ 105.000BILOCALE ARREDATO AD AYMAVILLES
VAI SUL NOSTRO SITO E GUARDA IL VIDEO DELL'ALLOGGIO!!! www.patriziadiemozimmobiliare.it Ad Aymavilles, in fr. Moulins, a pochi passi dal Municipio e dalla chiesa, VENDESI grazioso alloggio con soffitto a volta in mattoni. L'appartamento viene venduto completamente arredato ed è composto da soggiorno con angolo cottura, camera da letto e bagno. Il riscaldamento è autonomo e all'esterno è compreso anche un posto auto esterno assegnato. Ideale come alloggio vacanza o per investimento! VAI SUL NOSTRO SITO E GUARDA IL VIDEO DELL'ALLOGGIO!!! www.patriziadiemozimmobiliare.it Classe Energetica: E EPI: 254,00 kwh/m2 anno
Main data
| Reference | ID1533849 |
| Ad date | 30/12/2022 |
| Contract | Sale |
| Typology | Apartment |
| Surface | 66 m2 |
| Locals | 2 (1 bedroom, 1 other), 1 bathroom |
| Plan | Earth |
Costs
| Price | 105.000 € |
| Price per m2 | 1.591 €/m2 |
| Condominium fees | €10,00/month |
Energy efficiency
| Heating | Autonomous |
| Heating System Type | at the stove |
| Heating Power Type | Pellets |
| Energy rating | E |
| Energy Performance Index (IPE) | 254 kWh/m2 year |
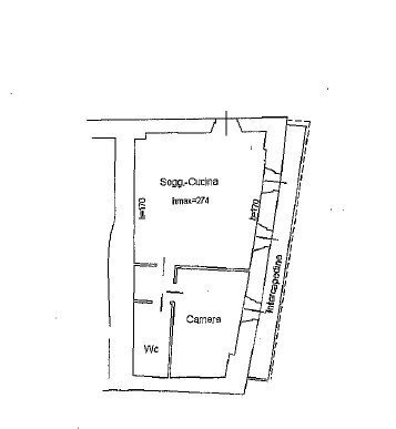
Floor plans
Address and map
Frazione Moulins, Aymavilles
Mortgage calculation
Selling price:
Advance
20,00
Mortgage
80,00
Rate: -+
Payment: 300 per month
The results are an indicative estimate based on the data entered and do not constitute a financial offer.
Advertiser
Call
CONTACT


